whatever
Senior Member
For an east side bus route, or an east side LRT?
Can someone explain the track diagram above to me? What are the two tracks in the centre for? They don't appear to go anywhere. Are they storage, or do they lead elsewhere?
I hate this plan and have done since I first saw the drawings. Hate it hate it hate it. It's going to be a poison pill for Queens Quay East if TTC insist on the loop expansion as a prerequisite (rather than introducing alternative service from downtown to the Ex/Ferry Docks/Island Airport to allow 509/510 to reduce enough to make QQE work).
I'd rip out the existing streetcar tunnel and replace it with an APM like Heathrow T5 (Bombardier Innovia 200 with platform doors; platforms at Union/ACC South/Queens Quay/Ferry Docks with some/most/all trains skipping ACC South/Ferry Dock depending on time of day), and through surface running on Queens Quay west to east.
Failing that I'd order a subfleet of double side double end streetcars, put a crossover in north of Queens Quay and then rip the whole thing out at Union and put 3-4 terminal tracks in there. I'd also institute a frequent bus service from Eireann Quay to York/Richmond/Simcoe along the ROW to reduce taxi demand but also serve the condos and the new commercial buildings south of the rail lands - would also get transit a bit closer to CN Tower/Skydome without getting too disrupted by events at the latter. At present the QQLRT skirts the demand (almost 50% of its catchment is water)
Extending the tunnel up Bay is a non-runner - has to pass the subway and all the sewers etc. already relocated for the 2nd Platform Project, plus the PATH.
That Idea was also kill due to cost as well having a ventilation system in there as well.That's an interesting idea, dowlingm. Rather than having all QQ vehicles (QQW, QQE, Spadina) go through the loop to Union, I wonder if it would be better to build a new underground streetcar station at Bay & QQ, and have a moving sidewalk tunnel that leads directly to the Union subway station platform. A quick Google Earth survey says that it's about 550m, which isn't much longer than Pier G (I think that's the long hammerhead one) at Pearson T1. This would save a lot of time for passengers interested in going from say Bathurst to Parliament along QQ, since they wouldn't have to detour to Union.
Part of the existing streetcar tunnel could even be used for this. It may also be a convenient way to connect the subway to the farthest GO platforms, as well as the GO bus station.
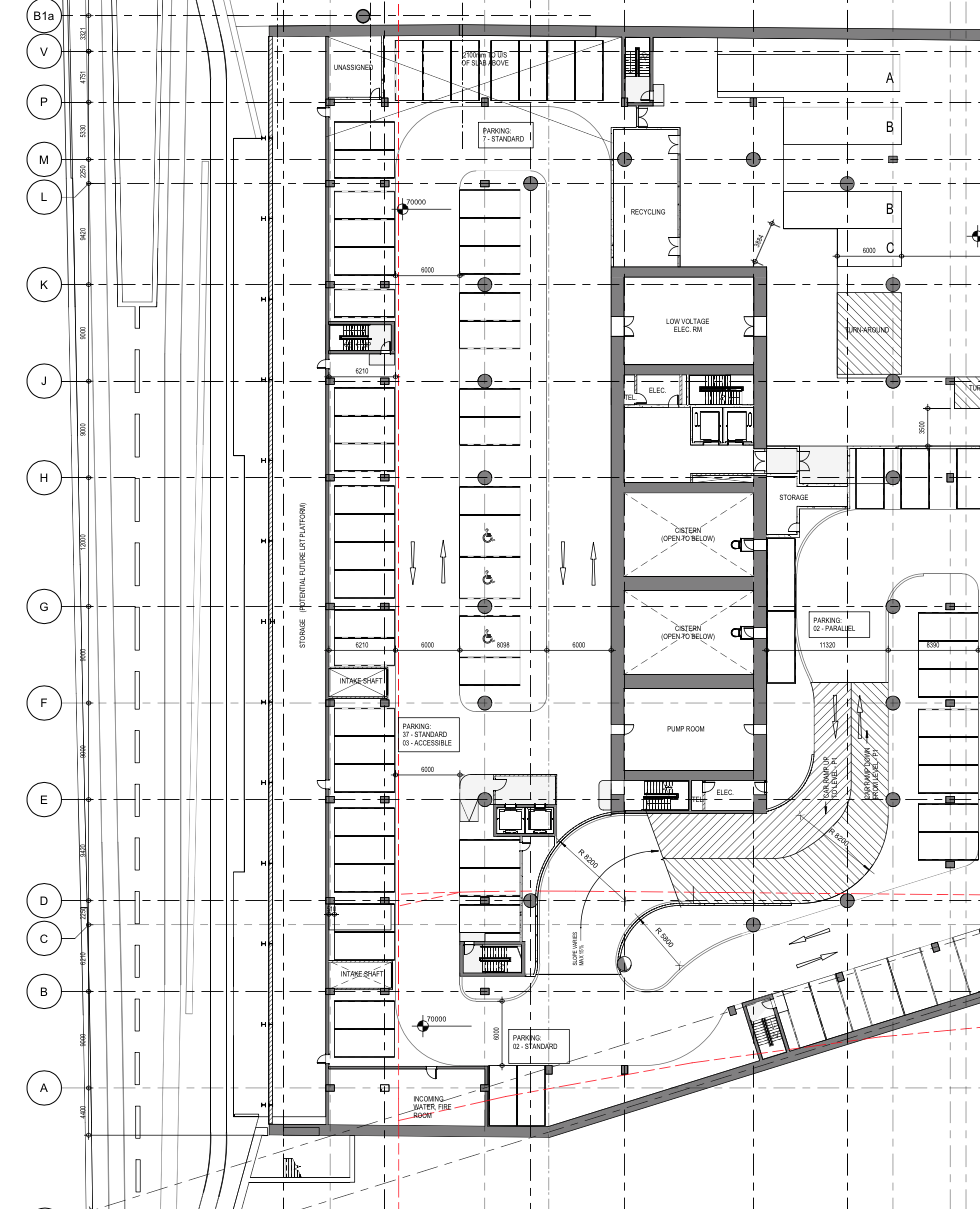
http://urbantoronto.ca/forum/showth...-GO-Transit-Hines-48s-x2-Wilkinson-Eyr/page73Waterfront East LRT platform is protected for in the lower level. It also protects for a staircase entry to the platform from Lake Shore Boulevard
View attachment 34822
The tunnel exist today for the Bremner line under the ACC with it surfacing at the west side of the west loop.
That whole portal and Bay Intersection will have to be completely torn up and rebuilt to put in a true T to allow all lines to use the Bay Tunnel.Does anyone know the *current* position with respect to the Queens Quay-Bay curve which will become a junction for East Bayfront? In 2013 Steve Munro wrote that there were problems creating a T / Delta junction which would preclude a construction order where shutdown east of Spadina was minimised to the installation of a T / Delta junction since once that was installed 509/510/310 could terminate at the East Bayfront loop at Parliament pending completion of Union Loop works. In 2014 drum118 wrote here that a through track would happen.
Unless TTC and Waterfront will toss the loop expansion, limiting it to expanded platforms/81 Bay connection but no additional track plus ditching Bremner, then another long Loop shutdown is in prospect and I think people should be rightfully annoyed at this given how long 509/510 were down to do the QQ West rehab.
Re: the Heathrow T5A-B APM - 670m. Not too far from the length of the QQ tunnel... and not the PRT that was pictured in this East Bayfront report. But probably not happening. Never mind![]()
Then that is what should happen. Having all light rail between Spadina and Parliament loops shut any time there is an issue in the Bay tunnel seems bonkers to me, not to mention the extra running time getting East Bayfront cars into and out of service to Parliament Loop.That whole portal and Bay Intersection will have to be completely torn up and rebuilt to put in a true T to allow all lines to use the Bay Tunnel.




