ADRM
Senior Member
I don't mean to be daft, but what is a "quick service" cafe?FYI, hopefully cozy!
View attachment 672025
View attachment 672028
View attachment 672029
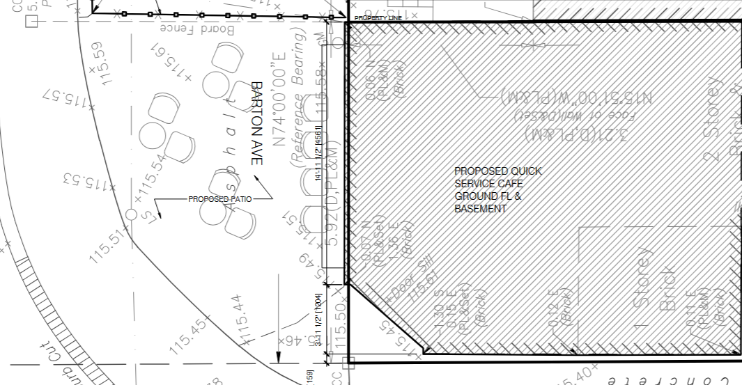
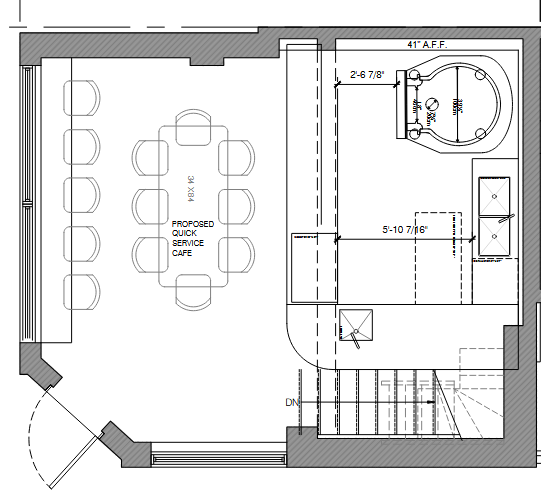
Plans taken from here https://www.toronto.ca/city-governm...0302&title=151-BARTON-AVE---FINAL-AND-BINDING




