789 Adelaide Street West.
![]()
Application Details
www.toronto.ca
View attachment 500904View attachment 500905
Taken 24 April. At the southeast corner of Wallace and Pauline.
View attachment 558919
View attachment 558920
Believe it or not, that house has been in this state for 10+ years. According to the neighbourhood grapevine, the work was originally done without permits and the city had to step in, though it doesn't look like they've had much success getting it fixed. I can't imagine that the building code allows OSB siding.
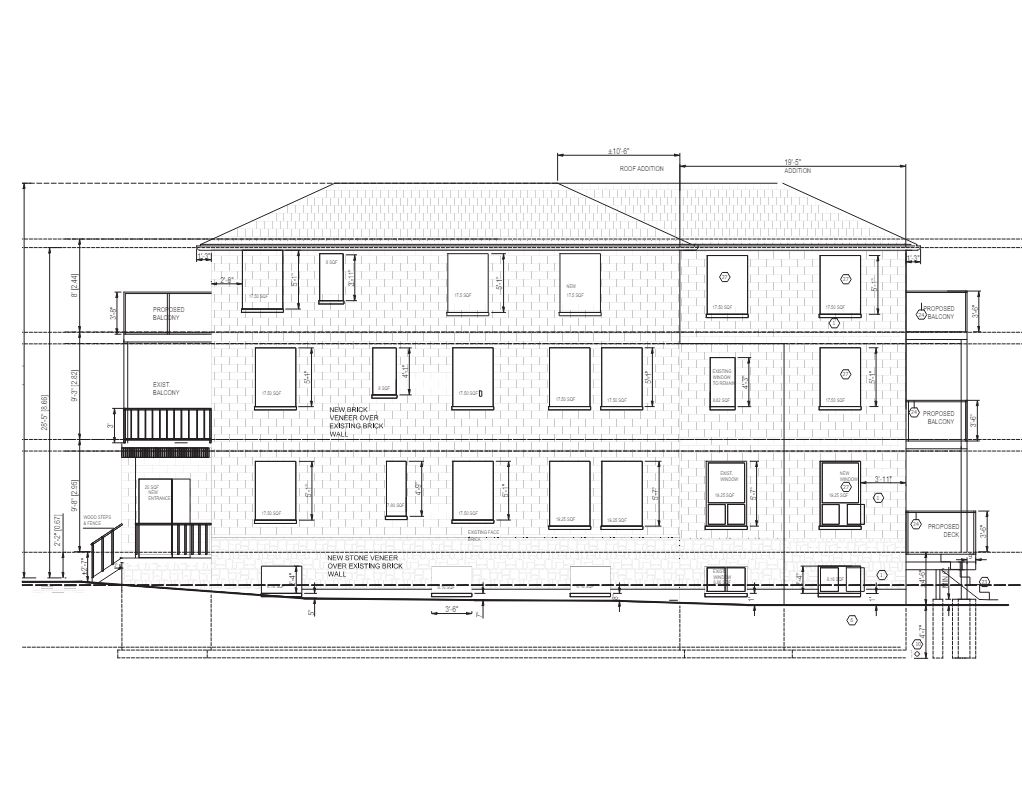
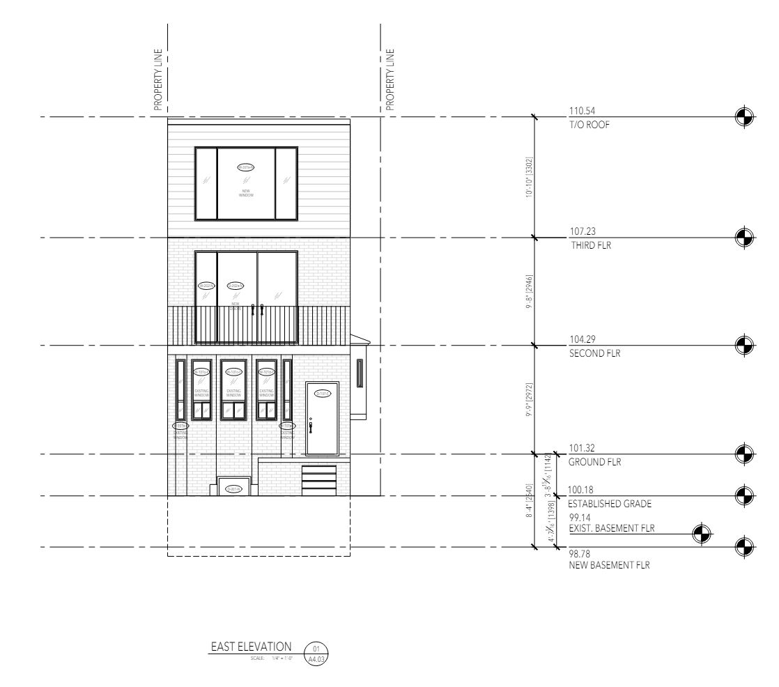
I have reviewed this application in the past. It is certainly an interesting development, and I'd be curious how the units look once they are built. The frontage on this and the neighboring lot is ~12ft only. Waiting to see how these look once built.791 Adelaide West. I am posting a few screenshots as I think that the design is interesting and the area is rapidly turning into a Kensington Market-style neighbourhood.
Studio A/C just got approval for a nifty multiplex on Dovercourt to be built by ROC Developments (299 Ossington.) unfortunately they don’t say where and I am very curious as there is a commercial component. And as we all know Dovercourt is a special street that is evolving more rapidly than surrounding ones. I looked on CofA but nothing.
Studio A/C just got approval for a nifty multiplex on Dovercourt to be built by ROC Developments (299 Ossington.) unfortunately they don’t say where and I am very curious as there is a commercial component. And as we all know Dovercourt is a special street that is evolving more rapidly than surrounding ones. I looked on CofA but nothing.
View attachment 578872




