Toronto LSQ | 141.4m | 43s | Almadev | WZMH

Phase 2 coming soon:



Screenshot_20230904_192100_Instagram.jpg
 
Ok, this is different...........

Council Approved the ZBA here last year.............but the proponent appealed the approval, on the basis of drafting deficiencies in the by-law as passed.
There is now a settlement offer headed to next week's Council meeting seeking to 'remediate' said deficiencies.

 
  • Like
Reactions: PMT

A new OPA/ZBA for LSQ with some revisions to Blocks 2 & 3.

Block Plan below for reference (note that Block 1 is unchanged with Tower A and Tower B -- also known as LSQ1 & LSQ2 -- at 43 & 30 storeys):
1739985772501.png


Block 2 has been revised to 43, 42, 27 & 27 storeys, with Tower C containing market-rate & affordable rental units and the rest contemplated as condominium tenure.

Block 3 contains the existing and retained 8-storey office building and a proposed 10-storey residential building (Building G).
PLN - Block Context Plan - null (19)-11.png


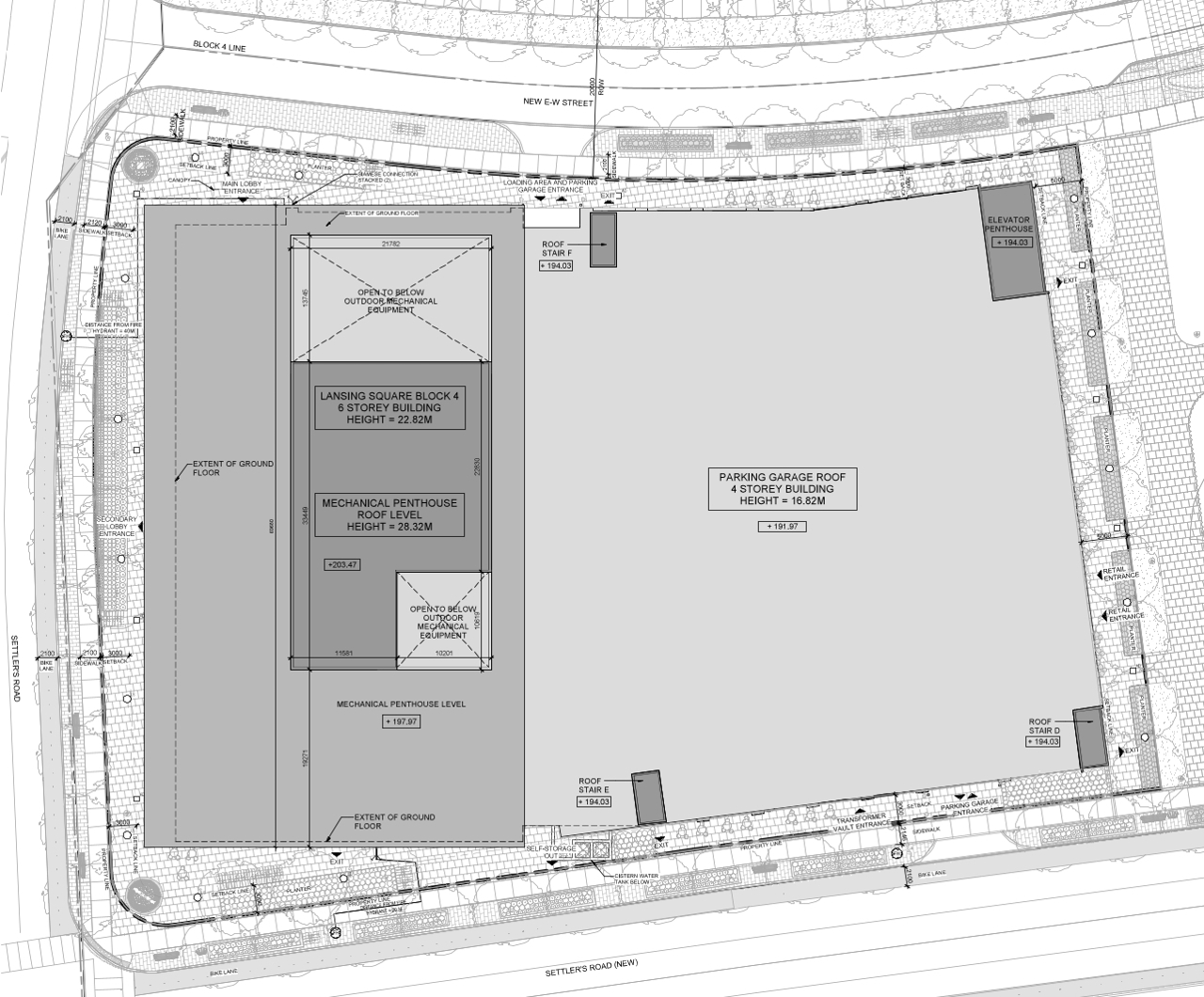
Block 4 has also been revised via Minor Variance from the previously OLT-approved 11-storey office/self storage + 7-storey parking garage to a 6-storey office, retail & self-storage building and an adjoining 4-storey parking garage.

Updated visuals for Block 4:
CA Supporting Material (2)-0.jpg

CA Plans (8)-01.jpg

CA Plans (8)-03.jpg


Updated renderings for Blocks 2 & 3:
PLN - Architectural Plans - null - 2025-02-19T075412.751-0.jpg
PLN - Architectural Plans - null - 2025-02-19T075412.751-1.jpg
PLN - Architectural Plans - null - 2025-02-19T075412.751-2.jpg
PLN - Architectural Plans - null - 2025-02-19T075412.751-3.jpg
PLN - Architectural Plans - null - 2025-02-19T075412.751-4.jpg
PLN - Architectural Plans - null - 2025-02-19T075631.757-01.jpg
 
Equipment onsite, some digging has begun.

Hmmm,

It's not excavation for the building just yet.............it's for soil remediation:

1745500493633.png


They need to pay their bill before they get much further:

1745500400985.png


No valid shoring permit yet. (for construction)
 
Again, "for purposes of remediation" is a workaround to start shoring work before your full permit is in hand.

I've seen a few of these PE, that resulted in full backfilling after the initial work.

I think I've only seen one that went right through.

I assume you've seen more.

You may know in this case which way that will go. I'm just leaving it open, since I don't know.
 

Back
Top