Toronto U of T: Schwartz Reisman Innovation Centre (Phase 1) | 64.8m | 13s | U of T | Weiss/Manfredi

Are they keeping any of the existing building? Some of it looks historical...
From the renderings it looks like it will all get razed....It most likely is historical?
but for some oddball reason the city seems to close their eyes to anything that has U of T and other government funded institutions written on it?
 
Are they keeping any of the existing building? Some of it looks historical...

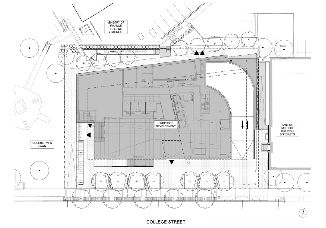
I don't think they are keeping anything other than the old church - but this project only involves tearing down Best Institute - from the Final Report:

1577123813594.png


AoD
 
Last edited:
Strange that the province relocated a daycare to place a playground immediately north of the property line in mid 2019.
C4E3BCC2-ACC5-4F32-8C9E-21BD5AF94269.jpeg
 
But the next phase (ie the east tower) will indeed include tearing down Best, I believe. It’s unclear to me whether both phases are funded, though.

I suspect yes, but Phase II hasn't been approved by the city, and there are studies (available on the AIC) that indicate Best could be incorporated into it as an option.

AoD
 
For clarity:

BEST is the building currently undergoing interior demolition, which will be fully demolished for phase 1.

BANTING is the occupied building that is currently intact.
 
For clarity:

BEST is the building currently undergoing interior demolition, which will be fully demolished for phase 1.

BANTING is the occupied building that is currently intact.

Interesting that they’ve set up the site office to the east of Banting (as you can see in the pics below from today). I wonder if that means demo of Banting is also imminent-ish, and if the project is proceeding under the assumption that both towers will be built in one shot.

C9B104B3-B143-4FF3-8573-0E9D2A6EE640.jpeg
E57EE615-F665-4B64-AF1A-B3B843861099.jpeg
68C3AF59-B83C-4740-857D-C0FD5437D47F.jpeg
 

Back
Top