Toronto The Bourne | 166.4m | 56s | Medallion | Arcadis

IMG_6821.JPG
 
Everything still points to this being 51 storeys as far as I can tell.

That's one more than Selby, but the height in M here shows lower than Selby by ~12M or so.

Edit: Hold on...... The marketing material on their website says 52 storeys........ hmmm

Also there is a large discrepancy in the unit count between what UT shows and the marketing material shows.


The above shows 430 suites.
 
Last edited:

Minor Variance to postpone conveyance of parkland dedication for the following reason, via the cover letter:
As a condition to zoning approval for the Site, the Owner is required to convey the parkland dedication in “clean and clear” condition prior to the issuance of the first above-grade building permit for the Site. However, since the time of the Council approval for the Site, it has been discovered that the 80.9 square metre parkland portion, as mentioned above, contains contaminated soil conditions.
As such, in order to convey said portion in “clean and clear” condition, the Owner must remediate the contaminated parkland portion, which process would inevitably delay the conveyance of the parkland and subsequent development of 532 residential rental units. In response to these finding, in hopes of moving forward with the expeditious development of the Site, the Owner reached out to City Staff to discuss a solution which would, in recognition of the Site’s unique circumstances, allow for a more imminent commencement of the development of the Site.
Following a collaborative process with City Staff, the Owner and the City reached a solution that would, rather than requiring the conveyance of the parkland prior to the issuance of the first above grade building permit for the Site, postpone such conveyance to the earlier of: “two (2) years after the issuance of the first above-grade building permit for the lands; and (ii) residential occupancy of any new building constructed on the lands”. To accommodate the revised timing with respect to the parkland conveyance, the timing for the completion of Park Improvements has been revised in a consistent manner. A total of eight (8) variances are required to implement the agreed-upon solution.

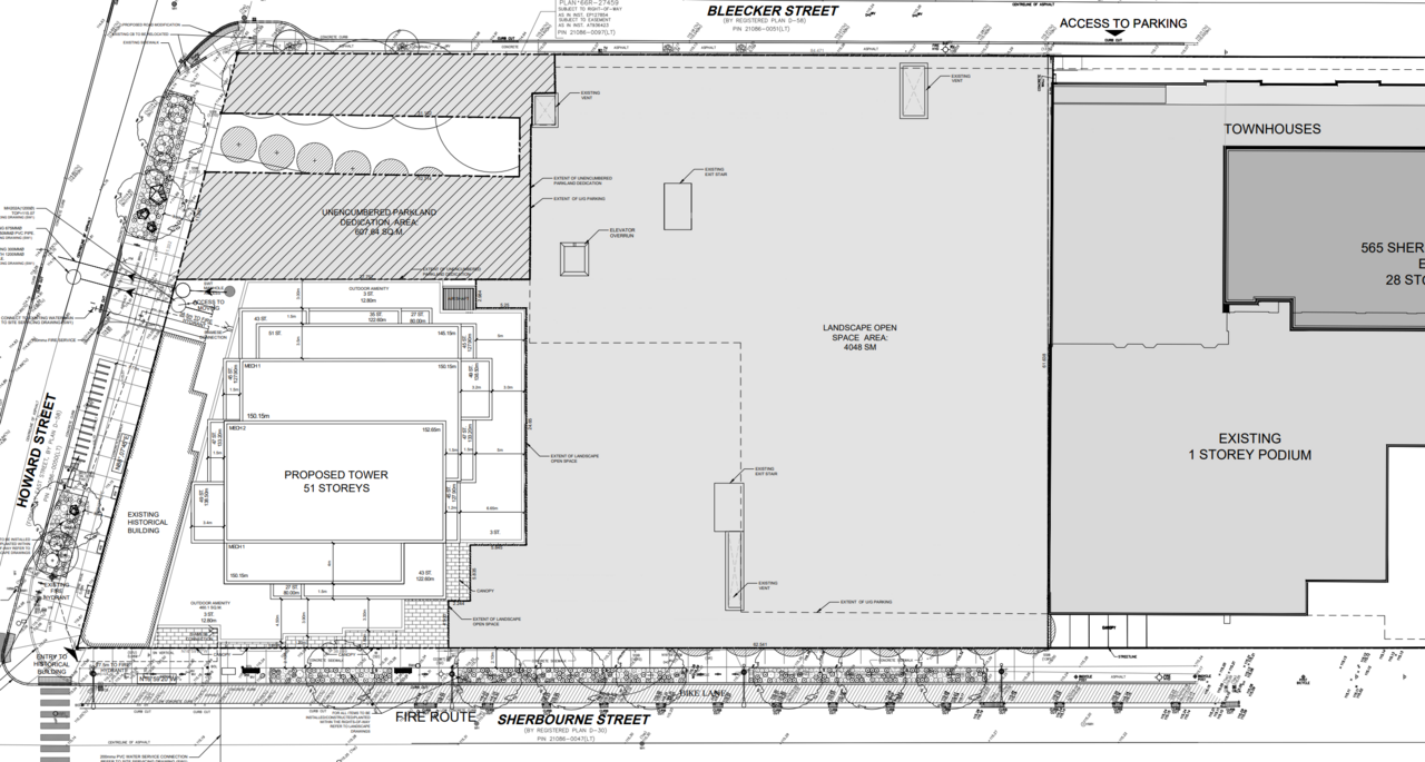
Area Plan:
1747163174400.png

The contemplated land swap transfers 583 Sherbourne Street, which lands are located in the middle
of St. James Town West Park, to the City in exchange for an effectively equal-sized portion of parkland
to be added to the immediate south of the Site. Additionally, as part of the zoning approval for the
Site, the Owner is required to convey a total of 607.64 square metres of unencumbered parkland to
the City. This parcel is to be comprised of a 526.74 square metre portion, provided in satisfaction of
the City’s parkland dedication requirement, and an additional 80.9 square metre portion which is to
be provided as part of a community benefit secured under Section 37 of the Planning Act. These
parcels are to be adjoined to the existing City-owned parkland located on the south side of Howard
Street, just west of Bleecker Street, which is part of the St. James Town West Park. Finally, the zoning
approval for the Site also included the extension of the City’s existing park lease on the 583-589
Sherbourne Street lands for an additional 124 years.
 
There is literally no soil there. They removed it all to reseal the underground parking. Very frustrating as a local for sure. But I cannot say I am surprised.
 

Minor Variance to postpone conveyance of parkland dedication for the following reason, via the cover letter:




Area Plan:
View attachment 651067

This previous MV was approved (with conditions) and the MV we were expecting has now been submitted here:

Proposed changes are as follows:
  • Storeys up from 51 to 56
  • Height up from 152.65 to 166.4m
  • Total units up from 532 to 592 (w/ 24 rental replacement)
  • Total vehicle parking down from 896 to 874
  • Total bike parking up from 532 to 604
No CoA Hearing scheduled yet
 

Back
Top