Toronto Sugar Wharf Condominiums (Phase 2) | 283.6m | 85s | Menkes | a—A

Sorry to ask again, I've went through the past few pages... this school will be built below the 90 storey tower? There are a few buildings in phase 2 I notice. Does this mean we will be seeing a launch soon on that?
 
Last edited:
My kids went to DAS. Second floor above the Tim's and Pizza Hut. Gym was on the first floor and shared with the Catholic School next door. Great school. Yes city housing above but so what. My kids loved the school and loved living in a condo.

Quote from the article. "Local TDSB Trustee Stephanie Donaldson (Ward 9) said "we are thrilled to build Canada's first elementary school that is completely integrated with a high-density, mixed-use development right in downtown Toronto".

I can see the reporter being clueless and maybe even the province but the trustee? Integrated in? Yes. Mixed-use? Yes. Downtown? Yes. High density? I'd say so.

Screen Shot 2022-01-21 at 8.21.11 PM.png
Screen Shot 2022-01-21 at 8.24.08 PM.png
 
Last edited:
...anyone have any details on the Physical specs of the new TDSB School (eg. Instutional GFA, which floors, etc) that is apparently going into the Podium of this development..?


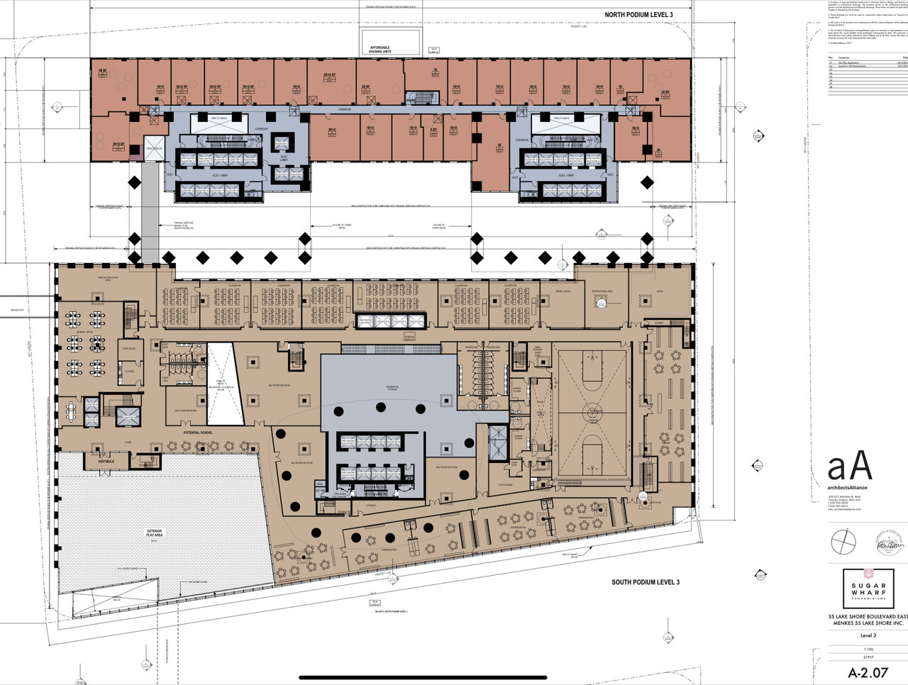
Oct 13, 2021 from the city site plan approval documents. Level 1 and 2 retail, level 4 condo amenities.
Level 3 proposed/potential school.
~60mx120m
3BE3D308-9CBA-4B20-8661-1F47CD9AF39E.jpeg

 
Last edited by a moderator:
Right, technically those aren't condos, but Tridel's Republic condo development in Midtown half a dozen years ago incorporated a rebuilt North Toronto Collegiate Institute…

…so the "first" thing is still all short memories, semantics, and political hot air!

42
First ELEMENTARY under a "School-in-Podium" model to get funded in Ontario... somewhat similar to theYonge/Eg HIGH school in 2009..., but ELEMENTARY schools and HIGH schools have very different school-requirements because of the very-young (JK - age 4) that they need to accommodate in Elementary.

Stuff like more bathrooms / smaller bathrooms - but bigger classrooms, etc... and very different OUTDOOR space requirements for little people, etc.

CreateTO has one in-design at the HOUSING NOW site at the SCIENCE CENTRE station on Don Mills, there's an otion for up to 2 x "School-in-Podium" on the CHRISTIE LANDS in Etobicoke, and expect this to become the model for DOWNVIEW in North York, etc... too...

Building 2-3 Storey stand-alone TDSB schools near high-order transit in Toronto is a model that no longer works.
 
Oct 13, 2021 from the city site plan approval documents. Level 1 and 2 retail, level 4 condo amenities.
Level 3 proposed/potential school.
~60mx120m
View attachment 376027

Is it me or does this look a bit small for a school? I can't imagine 7/10 classrooms is enough for even a middle school.
 
Last edited by a moderator:
Is it me or does this look a bit small for a school? I can't imagine 7/10 classrooms is enough for even a middle school.
The "School-in-Podium" model that we have seen in the CreateTO documents for the Science Centre Station site school - and the one proposed on the Christie Lands in Etobicoke are both ELEMENTARY schools in approx. ~54,000 sq. ft of strata within the developments.

Would need to see more detail on these to compare those specs - but if the Province has coughed-up $44-MILLION and TDSB/Toronto Lands Corp (plus City Planning) have all signed-off... then it must meet the Provincial Education specs for ELEMENTARY guidelines.
 
Thanks for the floor plan! Can you tell us if school is in the tower above the new LCBO store at Queens Quay or in the Tower just north of that? I think it’s in the “B” position in the photo I posted.
Thanks!
Oct 13, 2021 from the city site plan approval documents. Level 1 and 2 retail, level 4 condo amenities.
Level 3 proposed/potential school.
~60mx120m
View attachment 376027
14A98459-BD7F-4F90-B843-2E6F5251A12E.jpeg
 
Last edited by a moderator:
Thanks for the floor plan! Can you tell us if school is in the tower above the new LCBO store at Queens Quay or in the Tower just north of that? I think it’s in the “B” position in the photo I posted.
Thanks!

View attachment 376087
Sorry these posts should be in Phase 2. I assume they will be moved.
Red is the three towers and blue is the podium school.
315200BC-62F7-418B-B4F4-25BC78B539F0.jpeg
 
First ELEMENTARY under a "School-in-Podium" model to get funded in Ontario... somewhat similar to theYonge/Eg HIGH school in 2009..., but ELEMENTARY schools and HIGH schools have very different school-requirements because of the very-young (JK - age 4) that they need to accommodate in Elementary.

Stuff like more bathrooms / smaller bathrooms - but bigger classrooms, etc... and very different OUTDOOR space requirements for little people, etc.

CreateTO has one in-design at the HOUSING NOW site at the SCIENCE CENTRE station on Don Mills, there's an otion for up to 2 x "School-in-Podium" on the CHRISTIE LANDS in Etobicoke, and expect this to become the model for DOWNVIEW in North York, etc... too...

Building 2-3 Storey stand-alone TDSB schools near high-order transit in Toronto is a model that no longer works.
Thanks for putting things in ALL CAPS. I surely wouldn't have understood the distinction otherwise…

…but the point of the "first" thing remains this; IT'S ALL POLITICAL HOT AIR. Schools already appear in mixed-use developments in Toronto, and more so, in dense cities all over the world. Some of the traditional media may be reporting this like it's actually been figured out for the first time, and if you really want to split hairs then sure, it's the first of one type of school in one narrowly defined type of development, but more important than that, it's about time we embraced having more schools in mixed-use developments in Toronto, even in Downview. 🤪

42
 
...if you really want to split hairs then sure, it's the first of one type of school in one narrowly defined type of development, but more important than that, it's about time we embraced having more schools in mixed-use developments in Toronto, even in Downview. 🤪
100% agree -- but getting it done requires a lot of "Wet-Cat Wrangling" between all of the different Ministries, etc...

Soooo much 'buck-passing' on some of the Government calls that our volunteers have been on about making this model 'Easy-and-Repeatable" around Toronto...

 
100% agree -- but getting it done requires a lot of "Wet-Cat Wrangling" between all of the different Ministries, etc...

Soooo much 'buck-passing' on some of the Government calls that our volunteers have been on about making this model 'Easy-and-Repeatable" around Toronto...

I'm definitely happy it's happening, and I appreciate all the work going on behind the scenes so that it does. It's crazy that it takes so much to bring the various agencies together, but they must realize that this is the way going forward now.

42
 
So they’re expecting the school to open for the 2024-25 school year, but site demo hasn’t started yet? That feels like magical thinking, no? Unless the plan is to open the podium while the towers are under construction?
 

Back
Top