Toronto No. 31 Condos | 153.63m | 46s | Lanterra | Arquitectonica

no31_02.jpg
 
Really disappointed in this muddy, cheap-looking precast.... 46 storeys of this crap blocking the views to the north of a project that was so well-executed with hand-laid brick (The Goode) adds further insult.

I know render-promises are often broken, but every image offered for this leaned closer to an orange tone, which would have played well with the spectacular coppery Aqualuna to the south.

img_5418-jpeg.661872

slicecom
 
^I got this all the way back from page 11 here...

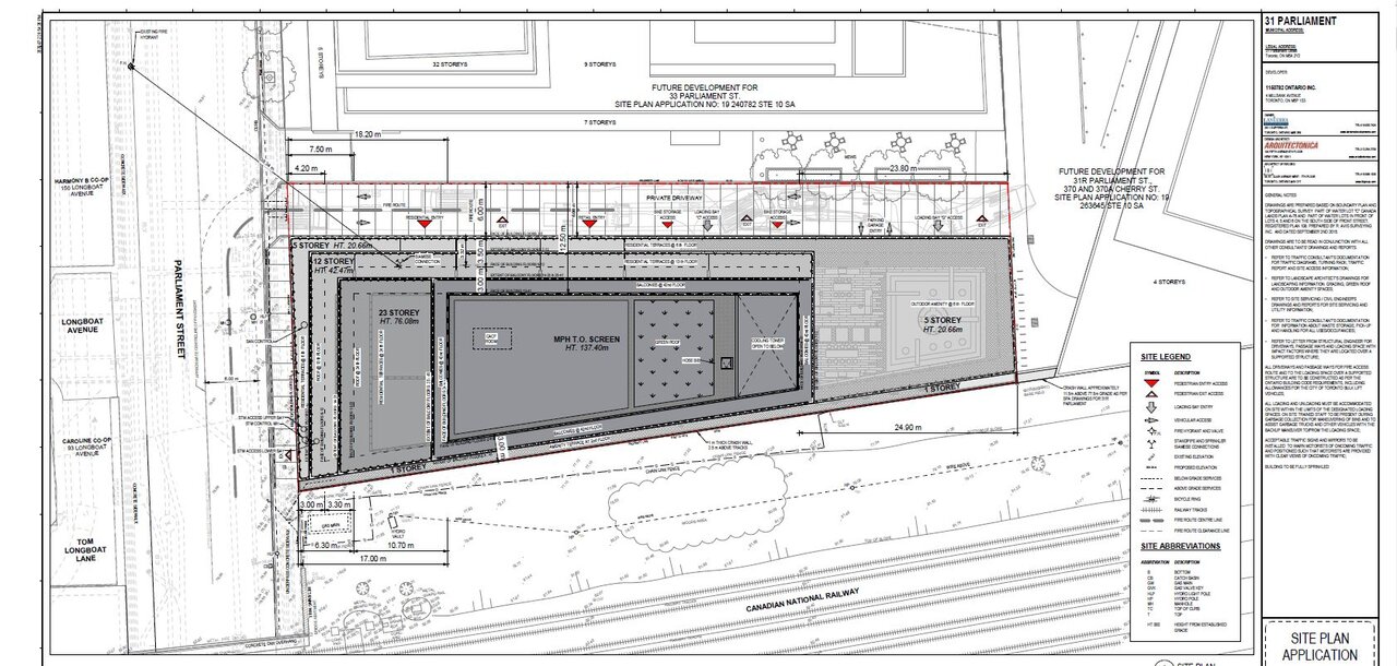
Does anyone know the actual building surveyed lot length and width, and where the back of the lot ends. I've seen one surveyor's marker that looks like it could be separation of Goode and 31 Condominiums at the very back, east side. But all the fencing in the back has 2 different areas before it meets the Green P parking lot. Guess my question is does 31 Condominiums end at existing Green P parking.

View attachment 407297
...not sure how up to date this is, but it does show the floor plates as wedge shaped...which is difficult to determine from the angle of the renders and pics. So it's wider on the west end of it than the east...if that helps.
 

Back
Top