Markham Langstaff Gateway | ?m | ?s | Condor Properties Ltd | IBI Group

From a community newsletter:

Capture.PNG
 
Another rezoning application in Langstaff Gateway, this time on the east side, for 201, 203, 205, and 206 Langstaff Road East and 3, 5, 11, and 17 Essex Avenue.

https://pub-markham.escribemeetings.com/filestream.ashx?DocumentId=39975

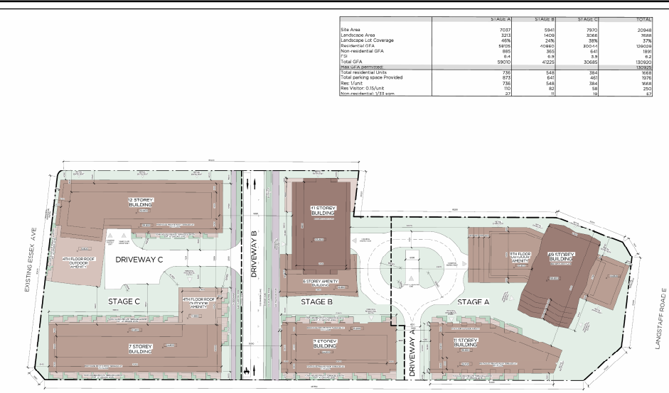
A conceptual site plan has been submitted to demonstrate how the site will develop with future site plan applications (see Figure 8). The owner is proposing to develop a residential and commercial community with six buildings, 1,668 apartment units, 1,891 m2 (20,355 ft2 ) of non-residential gross floor area (GFA), 1,976 parking spaces, and an overall floor space index (FSI) of 6.2. The site is proposed to be developed in three stages starting from from Langstaff Road westwards:

Stage A: 49 and 11 storey buildings with 736 units and 885 m2 (9,526 ft2 ) of retail

Stage B: 41 and 7 storey buildings with 548 units and 365 m2 (3,929 ft2 ) of retail

Stage C: 12 and 7 storey buildings with 384 units and 641 m2 (6,900 ft2 ) of retail
Screenshot (388).png
Screenshot (389).png
Screenshot (390).png
 
Is there an updated master plan for the Langstaff lands? Seems like it is 12 years old at this point, and some things have changes in the context/market.
 
Text and image from councillor Keith Irish's email newsletter:

"The city is now in receipt of complete Zoning By-law Amendment and Draft Plan of Subdivision applications, submitted by Langstaff Land Holdings Ltd. (“Kylemore Communities”), for 3.92 hectares (9.69 acres) at 201, 203, 205, and 206 Langstaff Road East and 3, 5, 11, and 17 Essex Avenue in the Langstaff Gateway.

The application proposes:
  • The development of 1,668 residential units with ground floor retail space shared between 6 buildings ranging between 7 and 49 storeys
  • Gross Floor Area (GFA) of 130,920 m2 (1,409,211 ft2), consisting of 129,029 m2 (1,388,857 ft2) of residential space and 1,891 m2 (20,355 ft2) of retail space
  • Site Density of 6.2 Floor Space Index (FSI)
  • A total of 1,976 parking spaces in an underground parking garage
  • A new 0.61 hectare (1.51 acre) public park
  • Preservation of the existing 0.36 hectare (1 acre) Langstaff Woodlot
  • A new east-west public street along the northern border of Holy Cross Catholic Cemetery"
unnamed.jpg
 
Another 9-12,000 jobs planned here, although that just sounds like it was copy pasted from the High Tech proposal (same for the unit count).

5 hectares of open space.

From tonight's public presentation:

a.JPG


a.JPG


50-75 storeys:

a.JPG


The IBI guy is calling this design iconic...

Capture.JPG


Overall site stats:

Capture.JPG
 
Last edited:
Another 9-12,000 jobs planned here, although that just sounds like it was copy pasted from the High Tech proposal (same for the unit count).

5 hectares of open space.

From tonight's public presentation:





50-75 storeys:

View attachment 369192

The IBI is calling this design iconic...

Apparently GTA residents will not be playing outdoor sports in the future..............

If a community of this size can't get one park large enough to offer a soccer pitch...........sheesh.

Note that total parks area is a bit light, not way light............but to offer good sports fields, you would need to consolidate it into fewer parcels.

Edit to add: at 1.9ha, Romeo Park could offer a soccer pitch if configured properly........but it wouldn't have much else.

( the regulation field for an adult soccer pitch is 0.7 ha without considering stands or any clubhouse type facilities, but any field also requires a buffer space, elsewise it would have to be surrounded by nets/fences)
 
Last edited:
I'm blown away by the scale proposed. Between this and High Tech, this could become the largest condo farm in Toronto.

Langstaff Gateway was originally 15,000 units when I started following development a few years ago; and I estimated the land north of the 407 could host another 7,000.

This is almost double.
 
I'm blown away by the scale proposed. Between this and High Tech, this could become the largest condo farm in Toronto.

Langstaff Gateway was originally 15,000 units when I started following development a few years ago; and I estimated the land north of the 407 could host another 7,000.

This is almost double.

I happen to think this is excessive.

It strikes me as odd to put so much density, at height, so far above the region's water supply. That drinking water comes all the way from the Lake, and it's pumped up hill.

I get that with the subway expansion, that horse left the proverbial barn awhile back.........

But even then....80 storeys.....
 
Yeah, 80 is nuts. I would support 50 easily. But hell, it would be surreal having multiple 60, 75 and 80 storey condos in my neck of the woods lol

edit: See, and y'all said Rail Deck Park is not possible. Looks like us superior city builders in Richmond Hill will beat you, Toronto weaklings! Kidding, kidding.
 
York Region is building out 3 major centres at VMC, Langstaff/High-tech and Markham Centre. This string of pearls is tied with the 407 transitway and Highway 7 BRT. This will help make better service viable and useful in the region.

There is going to be intensification in York Region and unfortunately I don't think we'll see it in the missing middle style as it's all so new and not likely to change fast. We need to accomodate growth and this is the best option of limited alternatives to locate it.

If we want to maintain employment lands at large we need to locate residential and office in places like this.

It's going to be dense, but if we get the public amenities and ground plane right this could be positive. And it's going to be developed not at once but in 25-30 years. The styles and tastes will change so I don't think we should fear 80 storey spandrel boxes. We'll get a range of styles.
 
I happen to think this is excessive.

It strikes me as odd to put so much density, at height, so far above the region's water supply. That drinking water comes all the way from the Lake, and it's pumped up hill.

I get that with the subway expansion, that horse left the proverbial barn awhile back.........

But even then....80 storeys.....
Something tells me that this increase in scope is them trying to offset the costs of the subway. If they want stations like Royal Orchard to get built, they need to try and pack in as many units as they can to squeeze out as much developer money to justify the rapidly increasing cost.
 
I happen to think this is excessive.

It strikes me as odd to put so much density, at height, so far above the region's water supply. That drinking water comes all the way from the Lake, and it's pumped up hill.

The water supply? Highway 7 is like 5km into York Region.
The Region has growth targets set out in the growth plan. If they're not putting people here, they're going out in the boonies, further from the water supply (or on overwhelmed Lake SImcoe) or otherwise in far less sustainable circumstances.


Something tells me that this increase in scope is them trying to offset the costs of the subway. If they want stations like Royal Orchard to get built, they need to try and pack in as many units as they can to squeeze out as much developer money to justify the rapidly increasing cost.

Yeah, that's the entire point of the TOC program and it's why I've been saying all along people are missing the forest for the trees, whining about a minor alignment change. And for even longer than that I've been scoffing at people saying that the subway should only go as far as Steeles or that really, all-day-two-way GO is all they need up in Richmond Hill (indeed, I saw David Miller say it on Twitter LAST WEEK!).
This would literally be impossbile if those people had their way.
This was the plan all along (subject to some adjustments in scale, granted) and anyone who has been following what's going on with the planning - not just of the subway but of the GTA and of Markham and Richmond Hill could see this coming and see that the subway was the key to it. If Mr. Miller had his way, they'd be putting maybe half the people here (in the midst of a housing crisis, I keep hearing) and the rest would be shopping for homes in Milton and East Gwillimbury.

I don't wanna belabour the point but these slides show exactly what I've been talking about on these boards for, I dunno, 10 years?
2-way GO and a busway - lordy, David Miller is way out of touch with reality. And he's not alone.

(That said, I wonder if mulitple 80-storey towers and 50,000 residents will be enough to get the Toronto Star et al to take notice or if they only pay attention to York Region when 20 homeowners are whining about a tunnel 50m under their houses. This, IMHO, is BIG.)

Apparently GTA residents will not be playing outdoor sports in the future..............

If a community of this size can't get one park large enough to offer a soccer pitch...........sheesh.

This is a pretty compact community and even the original plan never had that kind of large park
But I can't help but notice there's a massive hydro field directly across the street. Seems like it could fit a pitch or two?

I'm blown away by the scale proposed. Between this and High Tech, this could become the largest condo farm in Toronto.

Langstaff Gateway was originally 15,000 units when I started following development a few years ago; and I estimated the land north of the 407 could host another 7,000.

This is almost double.
EDIT:just to add that based on the maps, this is barely more than half of Langstaff we're talking about so this is likely a lot more than double, when all is said and done. Not sure what area north of the 407 you were looking at but it's probably more than double there too.

The scale is definitely ambitious but it's not surprising. First of all, that's what happen when you announce a subway and then let the plans sit on a shelf for 10 years while the developers get to work. (see also the 50-storey+ developments lining up at Yonge-Steeles). Plus, the whole point of TOC is that they work with the province and get more density so... it's a lot, but it all seems kind of inevitable. Inevitable to everyone but the stop-at-Steeles people and the former Mayor of Toronto I guess.;)
 
Last edited:

Back
Top