afransen
Senior Member
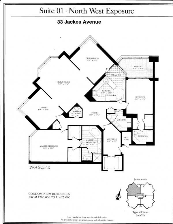
The vestibule and foyer seem like a waste of space. Why not make a more open concept kitchen, and put the laundry in second bathroom...View attachment 400238
Best floor plan I have seen in a while. I'm looking to upsize and an older building seems to be the best way to go.




