rdaner
Senior Member
212 Christie Street just south of Dupont. Again I was useless in trying to find out how many units are here but I would guess 4-10. And a new café next store! Taken 23 February.
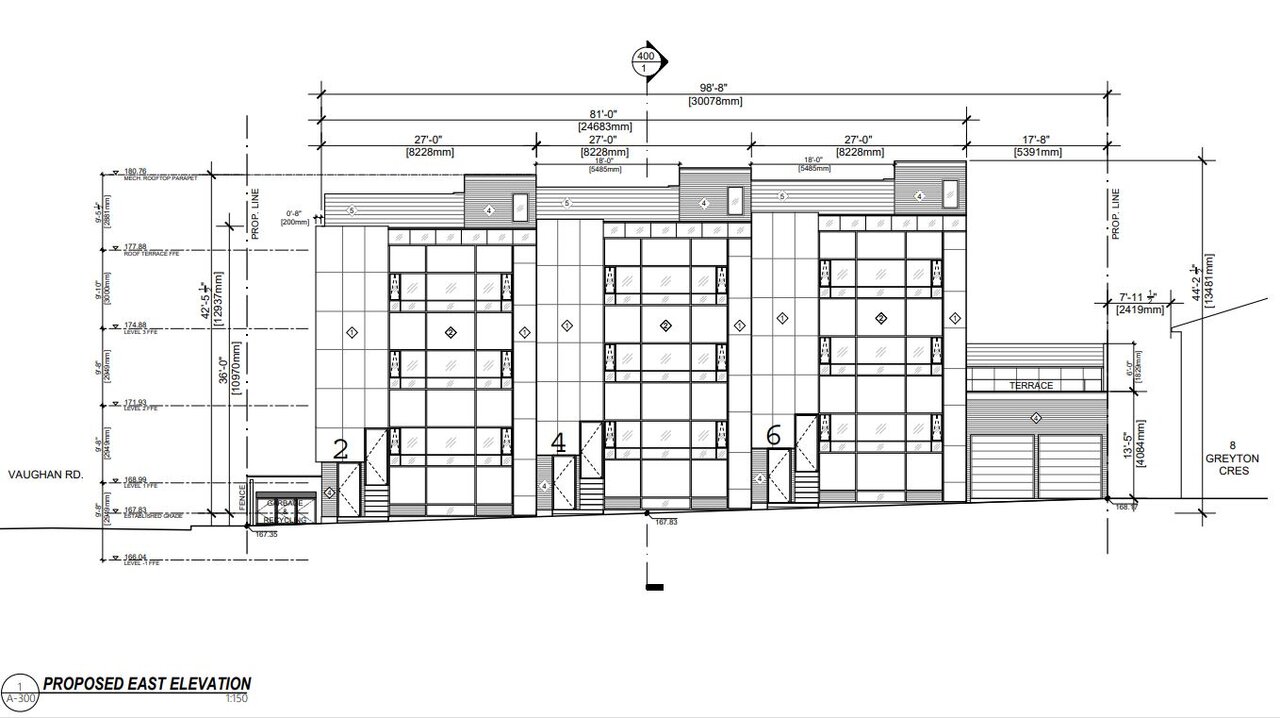
A new triplex along Vaughan Road, near the Dufferin & Eg intersection
![]()
Application Details
www.toronto.ca
729 VAUGHAN RD
To construct a Triplex with rooftop terraces and an attached one-storey two-car garage with a rooftop terrace in the rear yard. The existing two-storey dwelling will be demolished.
Currently this:
View attachment 629804




