AlbertC
Superstar
For the Wallace Emerson area:
www.toronto.ca
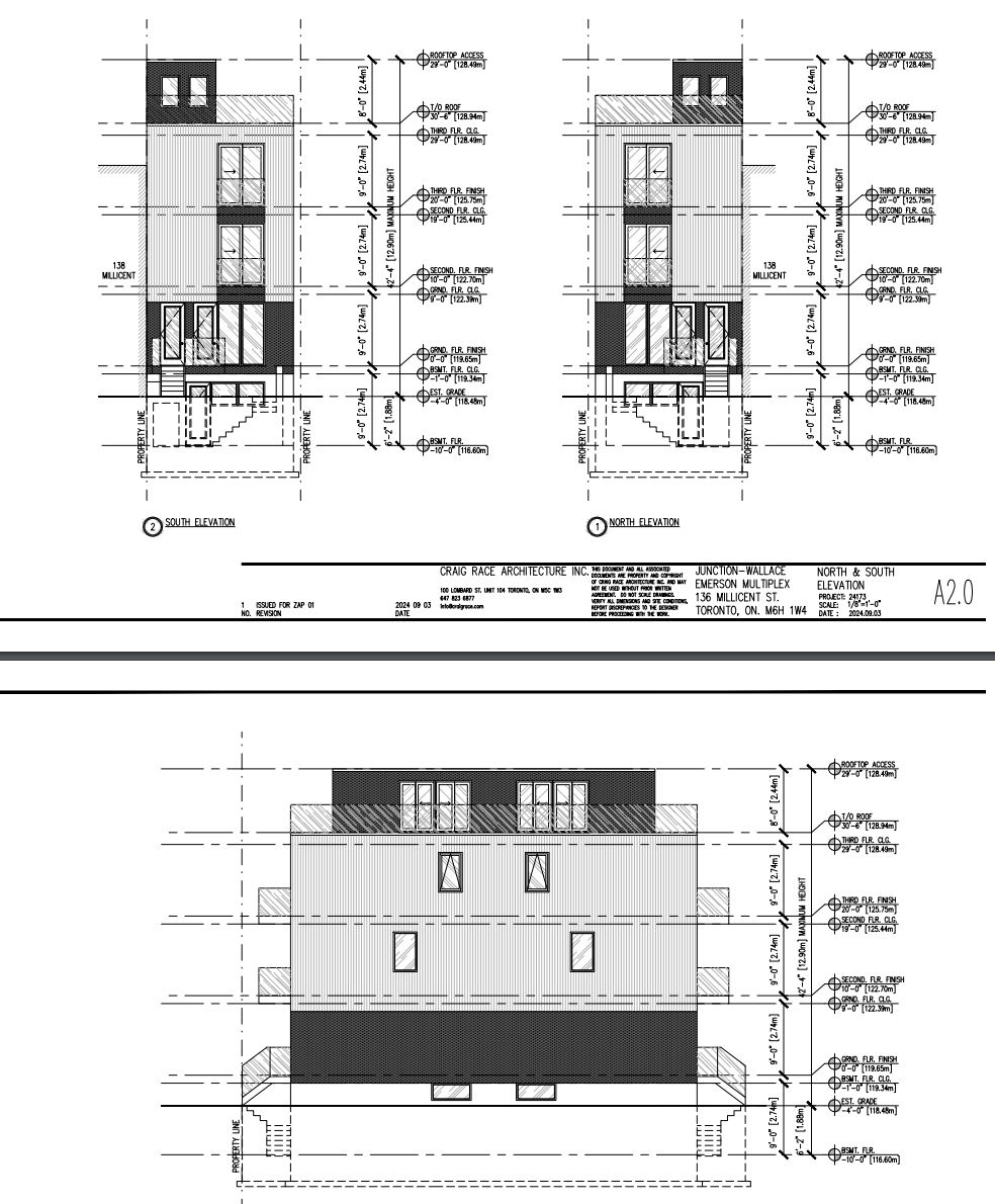
To construct a new three-storey semi-detached building (containing six residentail dwelling units) with front and rear balconies on the second and third storeys, two rooftop terraces (above the third storey), front and rear entrances on the ground floor, and front and rear basement walkouts. The existing two-storey semi-detached dwelling will be demolished.
Application Details
136 MILLICENT ST
To construct a new three-storey semi-detached building (containing six residentail dwelling units) with front and rear balconies on the second and third storeys, two rooftop terraces (above the third storey), front and rear entrances on the ground floor, and front and rear basement walkouts. The existing two-storey semi-detached dwelling will be demolished.




