rdaner
Senior Member
Just south of Dupont on the west side of Bathurst. Taken 29 March.
Multiplex explosion in Baby Point!
First time that I've ever seen this before since the new zoning rules were introduced. Apologies to mods if we aren't supposed to link to actual MLS listings
Someone bought 319 Mortimer in East York. Rebuilt it as 3 units in the main building, plus a separate two-story garden/laneway suite.
The difference is that these are for sale, not for rent.
Here's 1-bed 1-bath unit in there.
Multi-plex means multi-garbage!Some work beginning on 995 Dufferin St. Also captured a raccoon on the front steps here lol
How does this work as separate units--is it basically a mini condo? How does common structural maintenance get managed.The Star just did a story on this property, link below. It's paywall'd, but it says that this was possible now that the new zoning rules are in effect.
![]()
This Toronto multiplex has four units, including a garden suite. They’re all for sale — separately
The property is set up as a condominium and offers an "attractive new option" for homebuyers, says a prominent urban planner.www.thestar.com
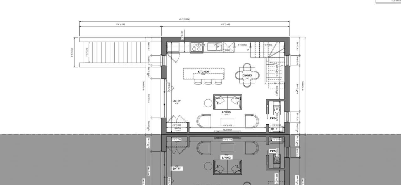
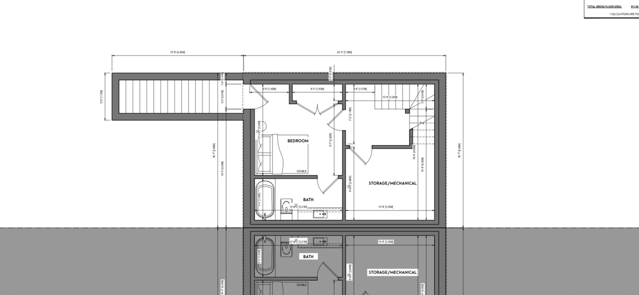
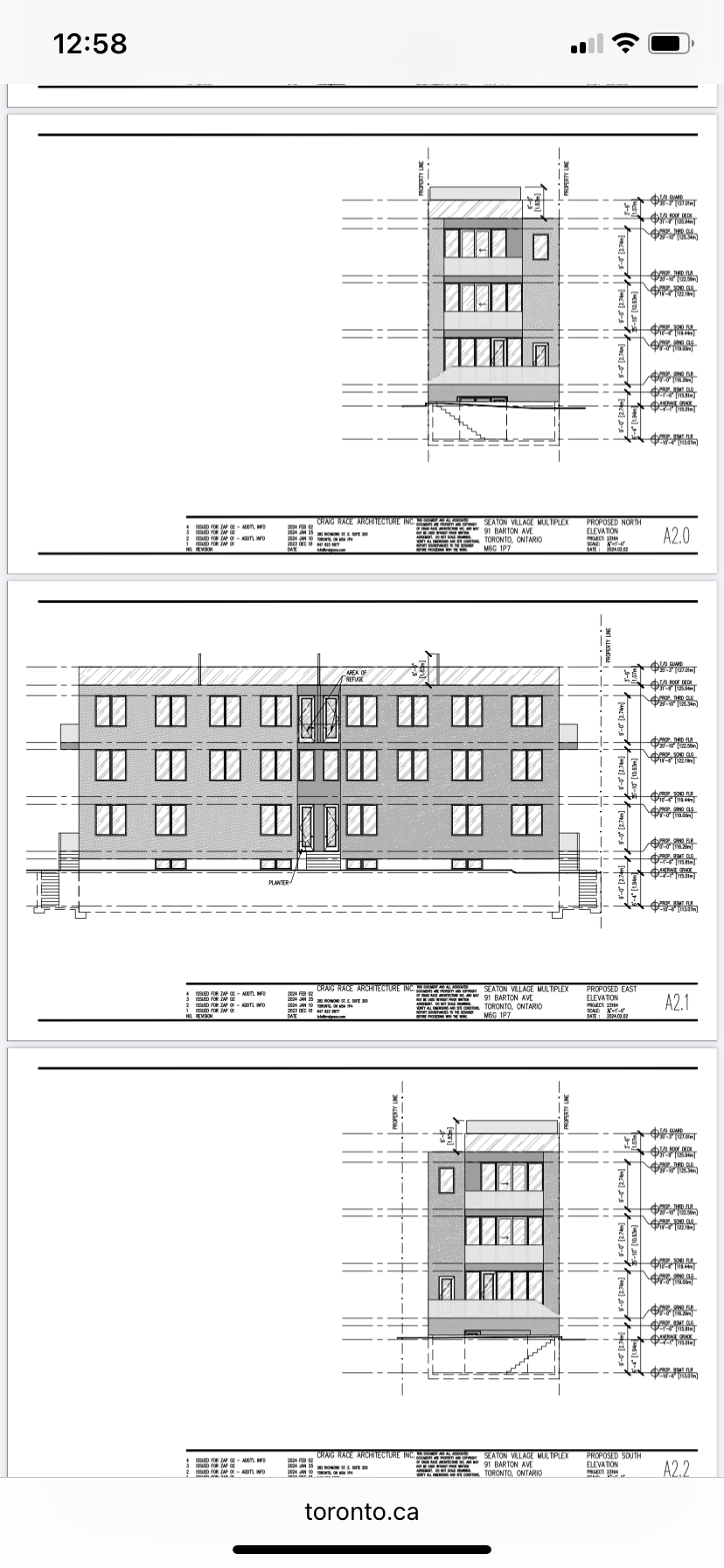
91 Barton. 3s, 10 units.
![]()
Application Details
www.toronto.ca
View attachment 546040
View attachment 546041View attachment 546042View attachment 546043
Yeah it's a mini-condo, and all owners form the 'board' to make decisions. More involved than normal, but that also partly explains the much lower maintenance fees.How does this work as separate units--is it basically a mini condo? How does common structural maintenance get managed.
$650 psf is pretty exciting from a housing affordability standpoint, given what highrise condos are going for.Yeah it's a mini-condo, and all owners form the 'board' to make decisions. More involved than normal, but that also partly explains the much lower maintenance fees.
One of the units seems to have just sold for $980k for around 1,500SF. If developers can make money on these at around $650/foot, hopefully we'll see more of them




