Toronto Maxium 2257 Kingston Road | 46.2m | 13s | Equiton Developments | Icon

1726019416812.png
 
@Paclo

This one is also being rebranded as Maxium (as is 1099 Broadview).

Per Renx:

 
Sales office going in at 1100 Kingston Rd
 
Good digging @WislaHD; so odd that both I and @Art Tsai (who just loves to scoop me) both missed it, LOL

I think, in my case, it's because it went through the CoA; which I don't normally look through.

At any rate, let's see what those newly uncovered docs show:

Renders:

View attachment 460188

View attachment 460189

The other two are already shown above.

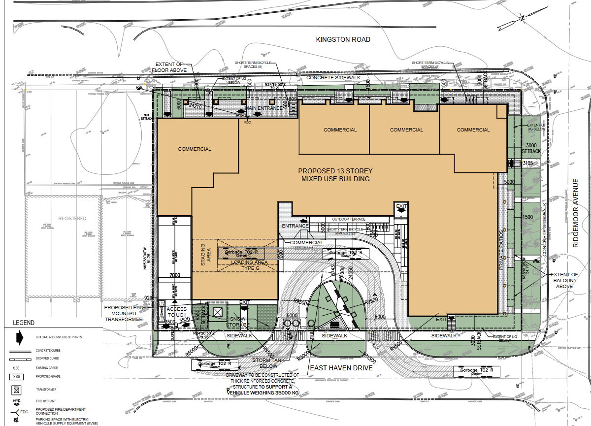
Site Plan:

View attachment 460190


View attachment 460191
View attachment 460192
View attachment 460193


View attachment 460194

Think I'll add the Block Context Plan here:

View attachment 460195
Hello,
I’m looking to move into the area. If I understand correctly, by looking at the above drawings, 4 condos will take over the strip malls (including the Tara Inn, Shopper’s Drug Mart, Starbucks, No Frills)? Will they be added to the commercial part of the development? Part of the charm is being able to walk to all of these places. Many thanks for your replies.
 
Hello,
I’m looking to move into the area. If I understand correctly, by looking at the above drawings, 4 condos will take over the strip malls (including the Tara Inn, Shopper’s Drug Mart, Starbucks, No Frills)? Will they be added to the commercial part of the development? Part of the charm is being able to walk to all of these places. Many thanks for your replies.

The developments fronting Kingston Road will all feature ground-level retail.

It may or may not be the same as the current mix and may or may not be successful.

The area is in transition, always a challenge. The current retail thrives on drive-up business. The new retail will rely more heavily on walk-up.
 
The developments fronting Kingston Road will all feature ground-level retail.

It may or may not be the same as the current mix and may or may not be successful.

The area is in transition, always a challenge. The current retail thrives on drive-up business. The new retail will rely more heavily on walk-up.
Thank you so much, @Northern Light, for the quick response. I’ve been researching like mad to find out the city’s plan for this stretch. Buying a home is a lot of money these days. You want to buy in the right area.
Oh, and I like your handle (An environmentally conscientious, libertarian inclined, fiscally conservative socialist). We might be the same person!
Cheers.
 
Some people might say that the world doesn't need a much much larger version of Canvas Condos. Some people might say that not every mass needs to be broken up by ten gazillion different materials in a bunch of nonsensical geometric patterns. Some people say that it takes more muscles to frown than to smile.
 

Back
Top