Toronto 985 Woodbine | 118.5m | 35s | Choice Properties | Superkül

In Memoriam, on the not so sudden passing of the "Great Pyramid of Woodbine" (2019 -2023) proposal...

1705377920783.png


Regularly one of the funniest (and most impactful) stops along our "Affordable Housing Bike Tours" of the Danforth with political-candidates...

1705378097392.jpeg


You were the visual-embodiment of a badly-flawed policy & practice at Toronto City Hall... and you helped to change / relax / remove that policy, just by being YOU...! 🙏
 
In Memoriam, on the not so sudden passing of the "Great Pyramid of Woodbine" (2019 -2023) proposal...

View attachment 533506

Regularly one of the funniest (and most impactful) stops along our "Affordable Housing Bike Tours" of the Danforth with political-candidates...

View attachment 533507

You were the visual-embodiment of a badly-flawed policy & practice at Toronto City Hall... and you helped to change / relax / remove that policy, just by being YOU...! 🙏

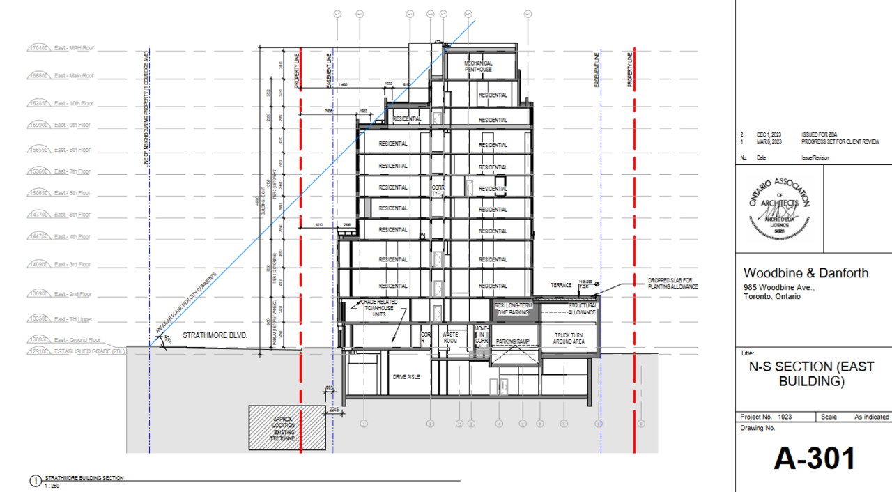
We can all agree the original massing of taller building was uniquely ill conceived.

Relaxing of the angular plane may have helped here........but honestly, probably not. It's important to know why.

This building changed from a midrise to a tall building, both in reality and in guidelines. Though even before then, you can see the change in massing that occurred to the concept in 2021, when T-F was removed from the project and Superkul was installed.

The original concept had an inordinately large lowrise (1.5 storey) spot right a the corner of Woodbine/Danforth, while at the same time building out greater height right to Woodbine.

As the concept evolved, you can see, greater setbacks along Woodbine {very much needed, as the status quo is dangerously narrow) ; a larger setback from Woodbine for the tower on top of this.

One can also see in the massing that there is less site coverage in the lower floors with a significant visual opening between the midrise and hirise forms.

Key here, is that the new massing does a fairly good job of minimizing shadow impacts; they do occur, and with the added height reach further into 'neighbourhoods' than was previously the case, but they also pass more quickly with the slimmed profile of the taller building.

What you actually see here are a series of gives and takes.

Further from Woodbine
Closer to Danforth
Smaller floor plate at midrise height range
Greater tower height (just about 2x)

Aside from a change in Architecture firm, what happened here?
I think we really see that this became a tall building site which is a function of the MTSA designation here, and potential precedent proposals at Main and at Pape setting the stage for a comprehensive re-think. Though, again, the pyramid was actually gone when this was still midrise in form, based on renders posted here. 'see @ferusian 's post here:


I think we can see some benefit here from the City being more flexible; and a provincial growth mandate; but we also see a proponent and their arch. firm showing a greater understanding of community needs and wants and also hiding the visual impact of the height better with a tower form than the original did with a midrise.

*****

For all of that..............I'm not sure this will be the final word on this development just yet. Unless the TTC lands are added, I don't foresee any radical changes to the massing here, particularly at height, but closer to grade, I think there's probably a need for some refinement.
 
As the concept evolved, you can see, greater setbacks along Woodbine {very much needed, as the status quo is dangerously narrow) ; a larger setback from Woodbine for the tower on top of this.

I have no major issues with the revised proposed with greater height. But as someone who walks along the east side of Woodbine, often with a toddler in tow, a larger setback from Woodbine is greatly needed. The current building has no setback from the property line. There is about 2.5 metres to the curb right now, which is interrupted by various light poles, hydro boxes, etc.

While the current proposal has a larger building setback of 5+ metres, the pedestrian clearway has only increased by about 1 metre per the landscape plan to 3.5m, further reduced to 2.5 metres due to existing street lights and transformers that are staying. The area between the property line and the building will be a POPS with very long planter boxes forming the east edge of the pedestrian clearway. Not sure if these are raised or not. This lines up with the existing TTC building to the north. While it's great to have the larger setback, this area needs to be rethought regarding pedestrian movements. Street trees are great, but here I feel the planter boxes will become more of a hazard. This sidewalk is very busy with people going to/from Woodbine Station. Some foot traffic will be reduced when Valu-Mart closes (they really should open the secondary entrance on Danforth)
 
I have no major issues with the revised proposed with greater height. But as someone who walks along the east side of Woodbine, often with a toddler in tow, a larger setback from Woodbine is greatly needed. The current building has no setback from the property line. There is about 2.5 metres to the curb right now, which is interrupted by various light poles, hydro boxes, etc.

Agreed.

While the current proposal has a larger building setback of 5+ metres, the pedestrian clearway has only increased by about 1 metre per the landscape plan to 3.5m, further reduced to 2.5 metres due to existing street lights and transformers that are staying. The area between the property line and the building will be a POPS with very long planter boxes forming the east edge of the pedestrian clearway. Not sure if these are raised or not. This lines up with the existing TTC building to the north. While it's great to have the larger setback, this area needs to be rethought regarding pedestrian movements. Street trees are great, but here I feel the planter boxes will become more of a hazard.

I would not want to see the proposed trees removed, 6M wide sidewalk a full block long with no streetscaping would be quite barren in appearance. I do think its reasonable to look at placement, to seek hydro wire burial along Woodbine, and make sure any residual infrastructure is placed to allow for the widest possible clearway.

This sidewalk is very busy with people going to/from Woodbine Station. Some foot traffic will be reduced when Valu-Mart closes (they really should open the secondary entrance on Danforth)

ValuMart's closure is temporary for the construction, it will return under the City Market banner in the new building, likely a bit larger than now, though the entrance will be moved to Danforth.
 
  • Like
Reactions: PL1
Yeah Woodbine station should for sure get some sort of treatment as part of this. (Including indoor connection with the grocery store and residential tower)
 
I would not want to see the proposed trees removed, 6M wide sidewalk a full block long with no streetscaping would be quite barren in appearance. I do think its reasonable to look at placement, to seek hydro wire burial along Woodbine, and make sure any residual infrastructure is placed to allow for the widest possible clearway.



ValuMart's closure is temporary for the construction, it will return under the City Market banner in the new building, likely a bit larger than now, though the entrance will be moved to Danforth.
Agreed. I don't want to see street trees removed. But another look is warranted. I'd prefer to see the planters adjacent to the curb with other street furniture and utility boxes, poles, etc., similar to how this treatment is done along Danforth. The issue is of course the Woodbine Station building is not setback far enough for a continual pedestrian clearway.

Good to hear a grocery store will be returning and the entrance is at the corner as well.
 
Yeah Woodbine station should for sure get some sort of treatment as part of this. (Including indoor connection with the grocery store and residential tower)

I don't think an indoor connection to the store makes particular sense, there was one at one point and it was removed; the station building is simply too small.

What is contemplated in the 15-year plan is bus platform expansion:

1705517923189.png


Clearly, the place holder year of 2039 makes no sense, if a new building is going to lock the existing platform area in place.

No expansion of the station building, above or below ground is listed in the plans, but I believe it should be. A small addition of 2-3M at the ground level and at level one below from the TTC's perspective, would extremely helpful.

I would also argue for a 3rd exit from the platforms to Cedarvale Avenue at Strathmore, given the vertical circulation challenges in Woodbine when service is turned back there.
 
Agreed.



I would not want to see the proposed trees removed, 6M wide sidewalk a full block long with no streetscaping would be quite barren in appearance. I do think its reasonable to look at placement, to seek hydro wire burial along Woodbine, and make sure any residual infrastructure is placed to allow for the widest possible clearway.



ValuMart's closure is temporary for the construction, it will return under the City Market banner in the new building, likely a bit larger than now, though the entrance will be moved to Danforth.
I just hope the new store here opens before the Sobeys down the road inevitably (I assume) also gets redeveloped.
 
I just hope the new store here opens before the Sobeys down the road inevitably (I assume) also gets redeveloped.

The Sobeys site will be redeveloped, the details are being explored currently.

I expect a supermarket will remain on the Sobeys site when redevelopment is complete, though I don't know if that decision has actually been taken.

That said, assuming a market were to remain, I think there's a good chance of a re-bannering. The Sobeys banner is being shrunk in Toronto in favour of Farm Boy and Longos and sometimes, Freshco.

Something that I certainly think is important is that the area not lose both markets, even temporarily, at the same time.
 


985 Woodbine Avenue: Community Consultation Meeting


Monday, May 6, 2024 6:00 PM - 8:00 PM
(UTC-04:00) Eastern Time (US & Canada)

Register for webinar

If you want to attend, register now. When your registration is approved, you'll receive an invitation to join the webinar.
 


985 Woodbine Avenue: Community Consultation Meeting


Monday, May 6, 2024 6:00 PM - 8:00 PM
(UTC-04:00) Eastern Time (US & Canada)

Register for webinar

If you want to attend, register now. When your registration is approved, you'll receive an invitation to join the webinar.
 
It seems that the 'Condo' as an investment is dead. Rental developments have become the new normal.
 
Biggest take-away from yesterday's consultation appears to be that this project is now all rental.

That would be a positive.

****

Here's what I'm looking for:

- Have they had the discussions yet w/the TTC on the Woodbine bus platform expansion?

***

- Also, there really should be a serious chat w/the TTC about providing 'air rights' over Woodbine Stn in exchange for space at and below grade for the expansion of Woodbine Station. There should be a fairly even trade to be
had there, particularly if Choice ate some hard costs for building additional shell space for the station.

That station can be severely congested when service is turned back at Woodbine or when there are major events at The Beach, it really needs more egress capacity along with room for Articulated buses at at least one bus platform and more passenger waiting room.
 
Last edited:

Back
Top