Vaughan 7Central | 184.24m | 55s | Graywood | Arcadis

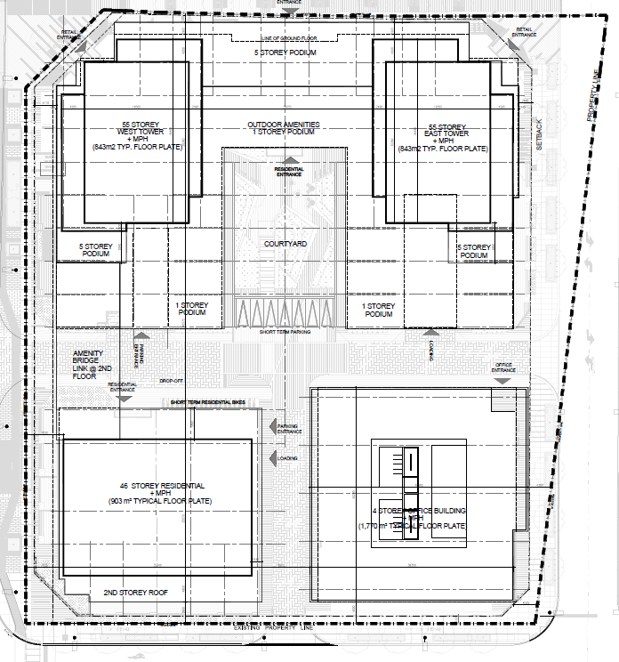
The new rendering is added to the database! The developer information is changed from the previously "Gupta Group" to now "Graywood & Phantom Development". The overall building heights went from 174.34m, 174.34m, 157.57m to 175.80m, 175.80m, 148.55m, 23.60m. The overall total proposed unit count increased from 1909 units to 2021 units. Finally, the total parking spaces decreased from 1788 parking spaces to 1079 parking spaces.
 
There's been a recent set of Arch docs uploaded late March dated December 2021 showing a new design:
View attachment 391351
View attachment 391352

Weird...How are you seeing the update? For some reason PlanIt just comes back with this to me:

1649871534796.png
 
the talk from the province about creating a single development submission and tracking portal for all municipalities in the province would be nice to see it extend to development application mapping too.. would make these kinds of things much simpler!

Oh no you don't........we're all going to get Markham's platform if that happens! You know it too! LOL
 
May be i lack awareness but i feel like in the Western world Mississauga and Vaughan will be the suburbs with most skyscrapers (150m+) by 2030. what do u think?
 

Back
Top