Toronto 72 Perth | 67.35m | 19s | Castlepoint Numa | Studio JCI

Now one of the "Approved Projects under Phase One of the Purpose-built Rental Housing Incentives Stream" at City Hall -

Updated Stats
Affordable Rental Housing = 43 units
Market Rental Housing = 168 units
=============================
TOTAL Rental = 211 units

PDF - https://www.toronto.ca/legdocs/mmis/2024/cc/bgrd/backgroundfile-251624.pdf


1734447601130.png
 
A new ZBA in service of the above is now in to the AIC.


Height change to 19s, still Studio JCI

@Paclo

From the above:
1738241855343.png


1738241935904.png

1738242003885.png

1738242078969.png


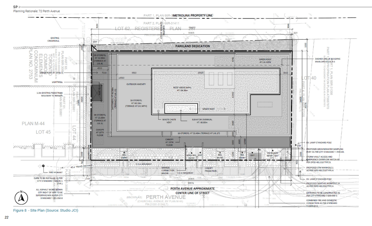
Site Plan:

1738242029133.png

1738242045823.png

The proposed floor plate here is much larger than guideline, but there's a good discussion here not only about why that makes sense for the proponent, but why it doesn't cause particular problems around shadowing here. As I've discussed before, I strongly support the objectives of things like Floor Plate limits, and even the Angular Plane, but the problem in the way these were addressed in the past was confusing the outcome (less shadows, less wind etc etc.) with the process.

In other words, good design and appropriate massing, in context, can serve to address those concerns. Good.

This lines up perfectly as what I pushed for in Planning reforms.

1738242512490.png
 
Last edited:
what a terrible planning rationale. "it makes the project more profitable" is not exactly a planning justification.. If you want to run that type of argument, say something like "the larger floorplates enable the delivery of affordable and dedicated rental housing units, a critical priority identified in XXXX policy.."
 
what a terrible planning rationale. "it makes the project more profitable" is not exactly a planning justification..

Well, LOL, it is for the proponent............ of course, that's not who the Report is being written for......
 
^I’m pactually surprised that they aren’t going higher which makes me wonder about the intention to build. Maybe waiting to combine with 1439 Bloor? I know that I can come across as uncaring in regards to context but in this case, being 50m from what will be an extremely busy rail interchange..,

(Ducks as heavy objects, curses thrown!) lol
 
Last edited:
Wake me up when Castlepoint Numa actually does something tangible here 😴
I was just going to say something similar. How many years (decades?) has this awful corner sat fallow, and every now and then the developer tinkers with the design again yet builds nothing?
 
I was just going to say something similar. How many years (decades?) has this awful corner sat fallow, and every now and then the developer tinkers with the design again yet builds nothing?

The current state of Bloor Street between the West Toronto Railpath bridge to Symington collectively, and even towards Lansdowne gives off some of the strongest rust belt type vibes in the whole city.
 
Last edited:

Another resubmission with the new affordable unit count down to 13; however the cover letter mentions that the precise number, mix & affordability level are yet to be finalized.
From 43 down to.... uhhhmmm... 13 affordable unit count...???

Too late tonight for me to start spelunking thru TMMIS and AIC -- but that seems like a "sub-optimal" solution in 2025.

Unless, they are all 13 X 4-BEDROOM affordable housing units... or something special for co-living, etc.
 
Staff recommendation report is headed to Toronto Community Council next week. Staff are recommending approval of the Zoning Amendment, and are securing 13 affordable units plus parkland for the WTRP.

Prepping our HNTO letter and speaking materials on this site, and had to dig thru the STAFF REPORT to extract the current "Affordable Housing" deal information from the Planning Report to TEYCC -

"..the applicant has agreed to provide a minimum of 13 affordable rental housing units through an in-kind Community Benefit Charge contribution pursuant to subsection 37(6) of the Planning Act. The affordable rental housing units will be provided on-site and maintained for a period of 25 years, where the total monthly rent, inclusive of all utilities, will not exceed the Official Plan definition of affordable rent by unit type."
1745672538317.png


"...the in-kind contribution shall have a total of three (3) studio units, five (5) one-bedroom units, four (4) two-bedroom units, and one (1) three-bedroom unit..."

Thirteen (13) affordable rental housing units, with a TOTAL of seventeen (17) x "affordable bedrooms".
1745672799115.png


"...City Council attribute a value to the in-kind contribution set out in Recommendation 4 (AFFORDABLE HOUSING) above, equal to 100 percent of four percent of the value of the land (net of any exclusions or exemptions authorized under the Community Benefits Charge By-law), as determined the day before the day the building permit is issued in respect of the development and direct staff to advise the owner of such valuation."

The City needs a MANDATORY mechanism to make that number PUBLIC on all of these CBC deals -

1745673147162.png
 

SPA resubmitted with the following stat changes:
  • Total units decreased from 262 to 258 (affordable unit count remains at 13)
  • Total vehicular parking increased from 41 to 42
  • Total bicycle parking decreased from 264 to 259
  • Height increased slightly from 66.8 to 67.35m
  • Unit mix redistribution, minor GFA adjustment
 

Back
Top