Toronto 68 Wellesley Street East | 91.9m | 28s | KingSett Capital | BDP Quadrangle

So the mid-section between the existing heritage portion and the white tower is supposed to be community space for the 519? I'm happy to see that. The design itself is whatever.
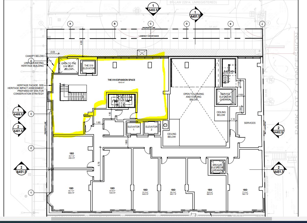
The 519 is a very small space on Level 2. I would have like to see the full floor. Who wants the 1 Bedroom Next to the 519, going to be noisy? Im glad to see it but its too small and not a great shape.

Screenshot 2.jpg
 


68 Wellesley Street East - Community Consultation Meeting


Tuesday, March 5, 2024 6:30 PM - 8:00 PM
(UTC-05:00) Eastern Time (US & Canada)

If you want to attend, register now. When your registration is approved, you'll receive an invitation to join the webinar.

Host
Jeremy Humphrey

Agenda
Community Consultation Meeting for 68 Wellesley Street East
 
No decision as yet on the hearing held last month. Have noticed there’s a status hearing on the 18th though.

For the uninitiated, does this mean we won’t know where the OLT stands on it until after that third hearing?

The hearing held last month was a Case Management Conference (CMC) which is mainly used for case logistics, discovery, organization of evidence & party status (not for decisions). They typically hold multiple CMCs before scheduling a merit hearing, and allow time for potential mediation / settlement, at which point they typically convert the merit hearing to a settlement hearing. Currently there is no indication of a settlement since there is no appearance on any upcoming city council / ctte agendas for the remainder of 2024. Assuming the OLT proceeds with the merit hearing on the 18th and actually makes a decision, we should have a public decision document by end of January*.

* holiday break may extend the typical expected timeline
 

This item will be considered by Toronto Preservation Board on May 14, 2025.

Summary​

This report recommends that City Council approve the alterations for the property at 68 Wellesley Street East under Section 33, Part IV of the Ontario Heritage Act, in connection with an agreed resolution with respect to the Conservation Strategy at the site.

On January 30, 2024, the City received applications to amend the Official Plan and Zoning By-law to permit a 28-storey mixed-use building in conjunction with an application for Site Plan approval for the proposed development. The project would have a non-residential gross floor area of 427 square metres, and a residential gross floor area of 17,056 square metres with 258 dwelling units.

On April 17 and 18, 2024, City Council refused an Application for Alterations to Designated Heritage Properties Under Part IV, Section 33 of the Ontario Heritage Act.
Agenda Item History - 2024.TE12.26

On May 17, 2024, the owner of 68 Wellesley Street East appealed Council's refusal of the Official Plan Amendment, Zoning By-law Amendment and Heritage applications for 68 Wellesley Street East to the Ontario Land Tribunal (the "Tribunal").

The site contains the properties located at 68 Wellesley Street East (convenience addresses: 70, 72, 74, 76, 78, 78A Wellesley Street East and 505, 507, 509 and 509 1/2 Church Street). Collectively known as the William McBean Terrace, these properties are designated under Part IV of the Ontario Heritage Act under By-law 914-2014. Constructed in the late 19th century, the built form of the William McBean Terrace is a contiguous row of 2 ½ storey row houses designed in the Second Empire style with a mansard roof, projecting dormers, and decorative detailing. The property was first listed on the City of Toronto's Inventory of Heritage Properties in 1974.

The proposal will feature in-situ retention of the entire street facing facades of the property at both Church Street and Wellesley Street East. The heritage attributes at the facades will be rehabilitated and restored. The existing storefront, which is not considered to be a heritage attribute, is proposed to be replaced by a new storefront that is more compatible with the existing building. The project would employ a seven-metre step back from Church Street with no cantilever above. At Wellesley Street East, the step back would be three metres with a 3 storey reveal. A cantilever would project to the façade plane above the three-storey reveal.

The owner has applied to alter the designated heritage property under Section 33 of the Ontario Heritage Act and this report recommends the application be approved with authority to enter into a heritage easement agreement.
 

This item will be considered by Toronto Preservation Board on May 14, 2025.

Hold the phone Joan............... City staff not only agreed to, but negotiated for this:

1747083657679.png

That corner...........What the??? You must be kidding.

I'm fine with, and wholly endorse pushing the tower form back and nixing any cantilever. Great!

But don''t build the corner like that!

Also tell me we're doing something better on the Church frontage than this implies........
 
Last edited:
UPDATE:

Refused at OLT!

I'll provide a link if I get a chance.

Long and short, proposal not compatible, not good planning seeks too many exemptions, violates no net new shadows on Barbara Hall Park and represents maximization not optimization of planning.
 
UPDATE:

Refused at OLT!

I'll provide a link if I get a chance.

Long and short, proposal not compatible, not good planning seeks too many exemptions, violates no net new shadows on Barbara Hall Park and represents maximization not optimization of planning.
Curious to read the decision, but only get a 404 from the link shared by paclo above. Where were you able to find it?
 

Back
Top