Toronto 5051-5061 Yonge | 182.9m | 55s | Sevoy Developments | Arcadis

Appeals report on this one to the next meeting of NYCC seeking approval to send staff to oppose this at OLT.

Amusingly, to me, the first CMC has already been held.


From the above:

1683208562846.png

1683208583671.png

1683208629518.png

1683208651514.png

****

My comments;

The POPs doesn't work here? Duh! You're not going to be able to re-mass the building in a way that will truly fix that either and still deliver something anyone wants to build. Pfft.

***

I don't understand the proponent not complying with the bog-standard setbacks for streetscape on Yonge. Everyone else has to comply, you do too. Don't think that's winnable for them.

***

Really, this seems pretty fixable to me. Push the building back for the desired sidewalks widths other builders have already delivered, nix the POPS, mitigate the wind a bit, voila.

This should not be at the OLT, this is way too easy to iron out; someone is being obstinate
 
This looks settled: https://secure.toronto.ca/council/agenda-item.do?item=2024.DM20.1

The tower form changed quite a bit at the new 55 st height from a square to a bar building: https://www.toronto.ca/legdocs/mmis/2024/dm/bgrd/backgroundfile-247515.pdf

The settlement report above was 'deferred' at the May '24 Council meeting.

But was adopted at the July '24 meeting with amendments.

@Paclo will see if there's anything up to date in the AIC for this, I couldn't dig anything up.

1767722003957.png



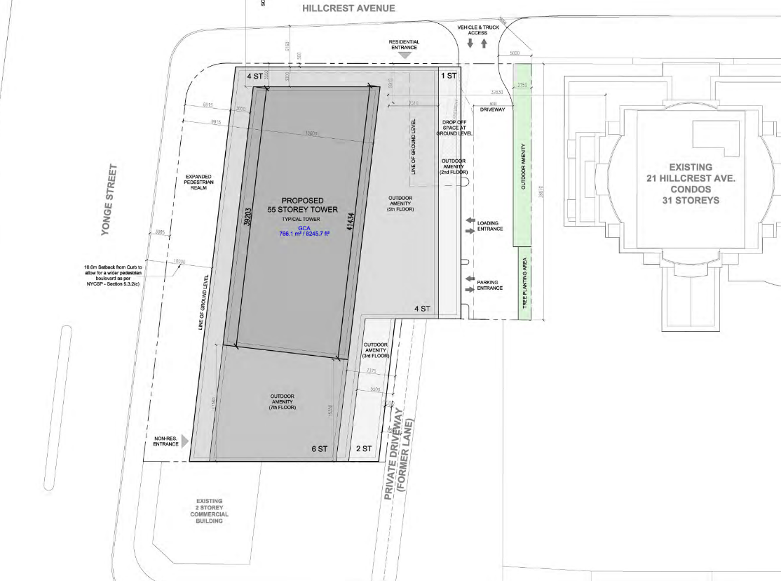
Revised Site Plan:

1767722139503.png
 
The settlement report above was 'deferred' at the May '24 Council meeting.

But was adopted at the July '24 meeting with amendments.

@Paclo will see if there's anything up to date in the AIC for this, I couldn't dig anything up.

View attachment 707047


Revised Site Plan:

View attachment 707048

Nothing since the settlement went before council in '24. OLT has yet to ratify and no further hearings were scheduled.
DB stats already updated to reflect the settlement proposal but renderings reflect the previous design.
 

Back
Top