Toronto 39 Newcastle | 143.93m | 42s | Osmington Gerofsky | TACT

Exactly. We should do just that.
So I guess we should just keep creating X amount of Milton's, with explosive population growth without the transit/road infrastructure to handle it huh? Not everyone is commuting into Downtown Toronto. Many people will have to rely on local transit, and in this particular case 1 bus route and 1 single lane road will be nowhere near enough absorb this explosion in growth.

even though i think it's very big

our area does need to grow up

living in LSV my entire life and nothing really has changed
I agree there are many areas in the city that should receive more density, that's something I dont diagree with. My point is that we cant just apply a carte blanche and say that "oh this area has a transit station, let's build 40 story buildings all over it because it has a transit station". You have to take the neighborhood characteristics and transit patterns into consideration. Otherwise, we'll end up with choked up communities that cannot handle and absorb the growth or worse yet, another case of Milton.

This particular area has nowhere near the amount of infrastructure necessary to absorb this growth. Traffic is bascially going to be funnled through a single access point (Royal York Rd), as Grand Ave isnt designed to see higher amounts of traffic (which is exactly what's going to happen here).

Sounds good to me. Mandatory upzoning around GO stations is one of the lowest hanging fruit, so to speak, of increasing supply. The densities may not be as high as they are proposed at this station, but that's understandable. As you get closer and closer to Union, densities should (and as these proposals indicate, will) increase.
Which would mean that stations like Oakville, Bronte, and Appleby should have far greater densities then places like Burlington and Hamilton right?
 
Which would mean that stations like Oakville, Bronte, and Appleby should have far greater densities then places like Burlington and Hamilton right?
Not quite the spirit of my post. My thinking is that densities will naturally be higher in stations in the City of Toronto proper, but that doesn't let Oakville, Bronte, Burlington, etc, off the hook from seeing higher densities around their GO stations. Therefore, the densities will (generally!) get lower the further you go away from Union. I.E. I see a lot of possibility for upzoning for midrise development along the Lakeshore West line stations between Long Branch and Aldershot.

There can and should be exceptions to this (I figured that would be obvious, I guess not), like Hamilton, Kitchener, Brampton, Mississauga, etc. These are mid-sized cities and are distinct from more suburban places like Oakville and Burlington, largely due to job prospects. There are better local job prospects in mid-sized cities than suburbs, naturally, but the proximity to Toronto also gives residents of these mid-sized cities the ability to easily commute to the major city. It is predictable that the densities in these mid-sized cities will serve both citizens that work within them and those that commute to Toronto.

In the case of Hamilton, where I live, I support density and height unequivocally. I have advocated for taller towers, new midrises, and more permissive planning rules for a few years now. West Harbour GO particularly has a dire need for new density.

(Sorry for continuing off-topic. Perhaps there should be a GO Station Density thread!?)
 
Not quite the spirit of my post. My thinking is that densities will naturally be higher in stations in the City of Toronto proper, but that doesn't let Oakville, Bronte, Burlington, etc, off the hook from seeing higher densities around their GO stations. Therefore, the densities will (generally!) get lower the further you go away from Union. I.E. I see a lot of possibility for upzoning for midrise development along the Lakeshore West line stations between Long Branch and Aldershot.

There can and should be exceptions to this (I figured that would be obvious, I guess not), like Hamilton, Kitchener, Brampton, Mississauga, etc. These are mid-sized cities and are distinct from more suburban places like Oakville and Burlington, largely due to job prospects. There are better local job prospects in mid-sized cities than suburbs, naturally, but the proximity to Toronto also gives residents of these mid-sized cities the ability to easily commute to the major city. It is predictable that the densities in these mid-sized cities will serve both citizens that work within them and those that commute to Toronto.

In the case of Hamilton, where I live, I support density and height unequivocally. I have advocated for taller towers, new midrises, and more permissive planning rules for a few years now. West Harbour GO particularly has a dire need for new density.

(Sorry for continuing off-topic. Perhaps there should be a GO Station Density thread!?)
For the sake of this development, i'll leave discussion out for other GO Stations and potential future developments around them.

However, I think the discussion of this development, and the neighboring buildings are well suited for this thread with regards to the high densities they are bringing to the Mimico neighborhood. This is pretty much unprecedented for the area.
 
Fencing round this site is being updated with Grand Central Mimico marketing, just like their On The Go site

PXL_20201118_173207775.jpg


Looks like they may use this grey building across the street as their showroom?

PXL_20201118_173340854.jpg


PXL_20201118_173252531.jpg



And whatever this guy is doing, he looks very serious about doing it. Surveyor?

PXL_20201118_173452282.jpg


PXL_20201118_173450081.jpg
 
Giant flag. I mean, what is this, the end of High St in Southampton?! Seriously, that thing's huge, but looking unexpectedly tiny in the wide-angle shot.

IMG_7270.jpg


42
 
The new rendering is updated in the database. The total storey count changed from 36, 30 & 22 storey to 36, 36, 30 & 22-storey. Total height changed from 113.08m, 96.31m, 72.54m to 119.30m, 119.30m, 100.70m & 76.10m. The total unit count increased from 833 units to 1351 units. Finally, total car parking was reduced from 983 parking to 914 parking.

Rendering taken from the architectural plan via SPA:

PLN - Architectural Plans - APR 27  2023 (3)-1.jpg


PLN - Architectural Plans - APR 27  2023 (4)-1.jpg


PLN - Architectural Plans - APR 27  2023 (4)-2.jpg
 
The new rendering is updated in the database. The total storey count changed from 36, 30 & 22 storey to 36, 36, 30 & 22-storey. Total height changed from 113.08m, 96.31m, 72.54m to 119.30m, 119.30m, 100.70m & 76.10m. The total unit count increased from 833 units to 1351 units. Finally, total car parking was reduced from 983 parking to 914 parking.

Rendering taken from the architectural plan via SPA:

View attachment 475950

View attachment 475951

View attachment 475952
Great to see parking numbers trending down in planning updates. Mimico GO is located in one of the most walkable non core neighbourhoods in the GTA and the last thing 2 lane royal york road needs is more cars. The 76 bus is already quite reliable (arguably more so than the 501L streetcar to the south) and hopefully it will see a solid increase in frequency to serve the new developments.
 
Osmington Gerofsky is the new proponent here! Read about the new plans for the site in our front page article:

PLN - Planning Rationale - AUG 18  2025 (1)-27 - Copy.jpg
 
Lots of good stuff in that story linked above. Still, I think some will want the AIC link:


And a few items belong here in he thread.

1756539794956.png


1756540183514.png


1756540222535.png


1756539858067.png

1756539961419.png


1756540008256.png

1756540028829.png


Site Plan:

1756540329345.png


Ground Floor Plan:

1756540071562.png



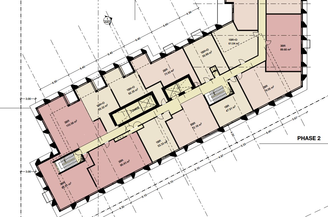
We need to discuss unit sizes/layouts here.............. @ProjectEnd

* note below is the same floor, 2 images, just to make everything legible

1756540505303.png


1756540562818.png



How much do I really need to say? Three beds in 850ft2?


The layouts around the elevators.............
 

Back
Top