Toronto 350 Bloor West | 117.65m | 36s | Andrin | Arcadis

Not sure I get this. But I am hoping this is a push to keep the elder structures both sides of Spadina. The rest of the stuff can go...as it looks dated and has no real architectural value outside of functionality as far as I can tell.

...also negotiating affordable housing options with these would be real sweet. So everyone can benefit here, and not just folks with money to throw around.
 
Not sure I get this. But I am hoping this is a push to keep the elder structures both sides of Spadina. The rest of the stuff can go...as it looks dated and has no real architectural value outside of functionality as far as I can tell.

...also negotiating affordable housing options with these would be real sweet. So everyone can benefit here, and not just folks with money to throw around.
Unfortunately it’s a done deal to demolish the building at 334 Bloor West. Was also hoping it would be incorporated. I think they will be commemorating the building with a plaque
 
Unfortunately it’s a done deal to demolish the building at 334 Bloor West. Was also hoping it would be incorporated. I think they will be commemorating the building with a plaque
I'm not sure what you mean by done deal when the article in question suggests that may not necessarily be the case in the negotiation. As I am pretty sure this project is still working itself around the approval process...which usually means nothing is set in stone as of yet.
 
I'm not sure what you mean by done deal when the article in question suggests that may not necessarily be the case in the negotiation. As I am pretty sure this project is still working itself around the approval process...which usually means nothing is set in stone as of yet.
This building's Zoning By-law Amendment application and Rental Housing Demolition applications were approved at the July 19, 2022 Council meeting. All the basics are wrapped up on this one.

42
 
While @interchange42 was correct that the 'basics' were wrapped up then; the premium add-ons are coming to the next meeting of Executive.



1698154610526.png

1698154628585.png

1698154653185.png

1698154702033.png

1698154718685.png


1698154762257.png


1698154787141.png


* We knew a subway connection/entrance was coming here; what we did not know was the extent of the concourse expansion or the contemplated additional vertical circulation (Stairs/Escalator) to the Line 2 Platform.
 
...and it only took a year plus for me to respond to that, I had to read back what I was yammering on about there. Sorry, Mr. 42! >.<
 

PB11.7 - 350 Bloor Street East - Alterations to a Designated Heritage Property​

Consideration Type: ACTION
Ward: 11 - University - Rosedale

Origin​

(October 16, 2023) Report from the Senior Manager, Heritage Planning, Urban Design, City Planning

Recommendations​

The Senior Manager, Heritage Planning, Urban Design, City Planning recommends that:

1. City Council approve the alterations to the heritage property at 350 Bloor Street East, in accordance with Section 33 of the Ontario Heritage Act, to allow for temporary removal of two precast concrete panels along the north facade of the existing building, with such testing in accordance with a Heritage Memorandum by ERA Architects Inc., dated October 13, 2023 and a Letter from the Facet Group Inc., dated September 25, 2023 prepared by ERA Architects Inc., and on file with the Senior Manager, Heritage Planning, subject to the following conditions:
 

SPA resubmission with some changes:
  • Storey count increased from 35 to 36
  • Total number of units increased from 422 to 431
  • Unit mix redistributed, tenure now fully rental w/ 24 rental replacement
  • Total vehicular parking decreased from 159 to 148
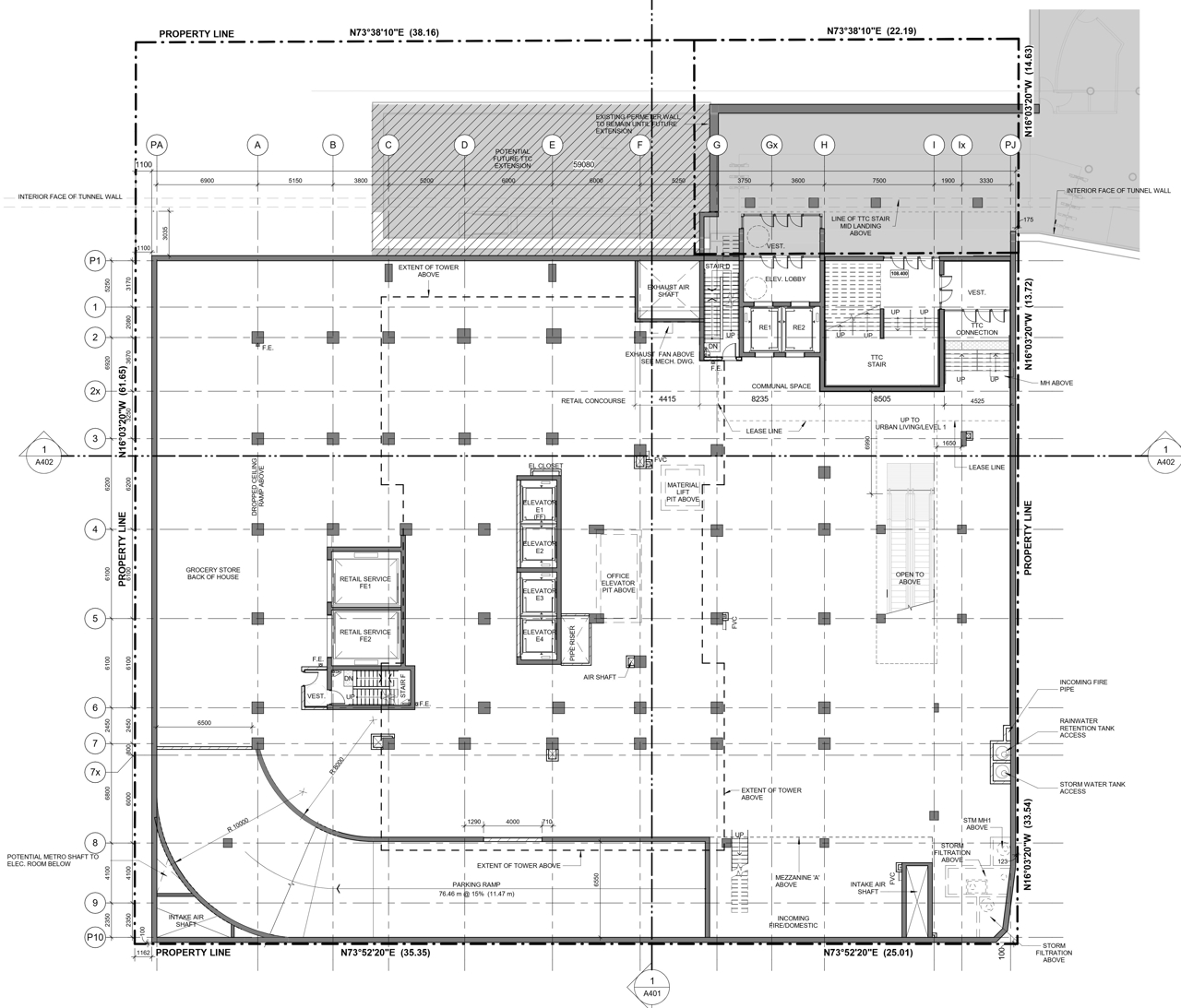
Revised concourse plan with Spadina Station interface:
PLN - Architectural Plans - Architectural Drawings1_334 Bloor Street West and 2 Spadina Road_M...jpg
 
It seems that the connection to the pedestrian concourse of Spadina station comes at the expense of the escalators to the surface that are there now, replaced with a staircase and a couple of elevators within the footprint of the new development (unless I'm misreading the plans). Meanwhile, the expansion area of the concourse will be built and will wait for the TTC to be ready to add the new stairs/escalators down to line 2.

42
 
I’m a little disappointed to see this one go forward in this form.

The idea of the “city room” as a public amenity makes no sense. It’s going to be 1) an extension of the grocery store and 2) a route for tenants to get to the subway without ever encountering the real public realm.

The stretch of Bloor is one of the liveliest streets in the city. Shops and public sidewalk. The last thing it needs is a dose of corporate-office-tower urbanism.
 
You know...I was going to ask about the developments here that are supposedly tied to the renovations and even expansion of the Spadina subway. Because it looks all very quiet on top...making we wondering if the housing market implosion has dampened the TTC's aspirations for this place.
 
It seems that the connection to the pedestrian concourse of Spadina station comes at the expense of the escalators to the surface that are there now, replaced with a staircase and a couple of elevators within the footprint of the new development (unless I'm misreading the plans). Meanwhile, the expansion area of the concourse will be built and will wait for the TTC to be ready to add the new stairs/escalators down to line 2.

42

Late to replying on this one...............Yes and No.

The proposal does remove the esclators from within the west side Spadina entrance/exit.

However, there are escalators to the surface within the new building (not inside the new Metro).

I believe these will be subject to a TTC connection agreement which means they would be accessible to riders during station open hours.
 

Back
Top