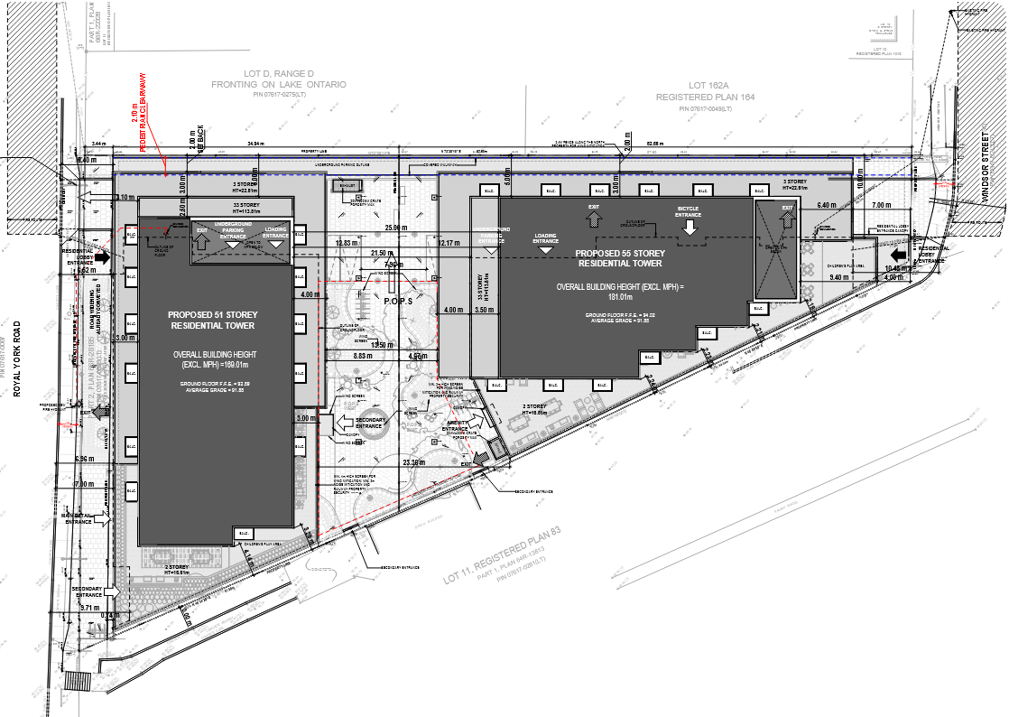
Toronto 327 Royal York Road | 188.01m | 55s | KingSett Capital | BDP Quadrangle

KS are owed $56,250,000 on this in mortgage, securities, and collateral so taking it over is taking it easy on Vandyk, if anything. I'd bet they still want some of that money back. They may need to change out some shoring if it's judged to be inadequate / dangerous, but they'll probably just let the ponding evaporate. Why spend the money?
Thanks for that info!

Regarding the pond, who knows how long evaporation may take, and how advanced any rusting of piles might be, but no-one (well, no-one well placed) wants photos in the media of popped open caskets tumbled into the site if they don't catch issues soon enough!

42
 

Glad this proposal is a step forward!

I was in this neighborhood a month ago to treat myself to the famous "SanRemo Bakery" around the corner and oh boy the abandoned site just looked depressing! At lease the new proposal looks promising
 
Glad this proposal is a step forward!

I was in this neighborhood a month ago to treat myself to the infamous "SanRemo Bakery" around the corner and oh boy the abandoned site just looked depressing! At lease the new proposal looks promising

'infamous' ? LOL

I always thought @interchange42 made them famous, not infamous.
 
What a San Remo donut will do for you is famous, but if you go "all in", what two will do for you is infamous.

maxresdefault.jpg

please forgive the source

42
 
My mind has circled back to that pic, and bunched together like that, I actually find the dozen donuts to be a total turnoff, like downright disgusting in fact…

…but individually, while I would not order some of those flavours myself, other flavours have me convinced they could solve most of the problems facing this world right now. Go San Remo!!

42
 
What a San Remo donut will do for you is famous, but if you go "all in", what two will do for you is infamous.

For the edification of the heretofore San Remo deprived. These are their donut flavours:

1746564870852.png

1746564960714.png

1746564983155.png


Now back to the subject at hand! (327 Royal York, not San Remo, LOL)
 
For the edification of the heretofore San Remo deprived. These are their donut flavours:

View attachment 649128
View attachment 649129
View attachment 649130

Now back to the subject at hand! (327 Royal York, not San Remo, LOL)
For anyone who eventually moves into 327 Royal York, this is just about the most important information that they can be given. I would expect that these menus will be part of the sales/tenancy contracts for each unit. Plus every unit should be issued a defibrillator.

42
 
They're selling the sites. That's the "substance".
Yeah...well, I guess... I would prefer they build the things they issue renders on. It would certainly up the quality of towers in this city. But that's just my opinion on it..and I'm not running their business...

Curious though...and that said, is KingSett planning on building here? Or are they just marking it up for something to be sold?
 
Yeah...well, I guess... I would prefer they build the things they issue renders on. It would certainly up the quality of towers in this city. But that's just my opinion on it..and I'm not running their business...

Curious though...and that said, is KingSett planning on building here? Or are they just marking it up for something to be sold?
Given everything you already know about KS' business, as well as the new information about the debts owed posted here today, what do you think is the answer to that query?
 
Given everything you already know about KS' business, as well as the new information about the debts owed posted here today, what do you think is the answer to that query?
Sure, but there have been "yeah, buts" in their portfolio...


...and that's what I was hoping here. And the reason why I still needed to ask. /shrug
 

Back
Top