Toronto 323 Symington | 133.37m | 39s | EBSI | TACT

This one was before Council in July with a Settlement Offer, which was adopted and is now public:


@Paclo

No change to storey count.

Revised Stats:

1753890574239.png



1753890608938.png



1753890629441.png


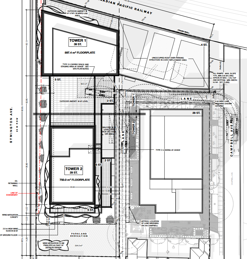
Revised Site Plan:

1753890676458.png


No New Renders

Elevation:

1753890742202.png
 
This one was before Council in July with a Settlement Offer, which was adopted and is now public:


@Paclo

No change to storey count.

Revised Stats:

View attachment 669876


View attachment 669877


View attachment 669878

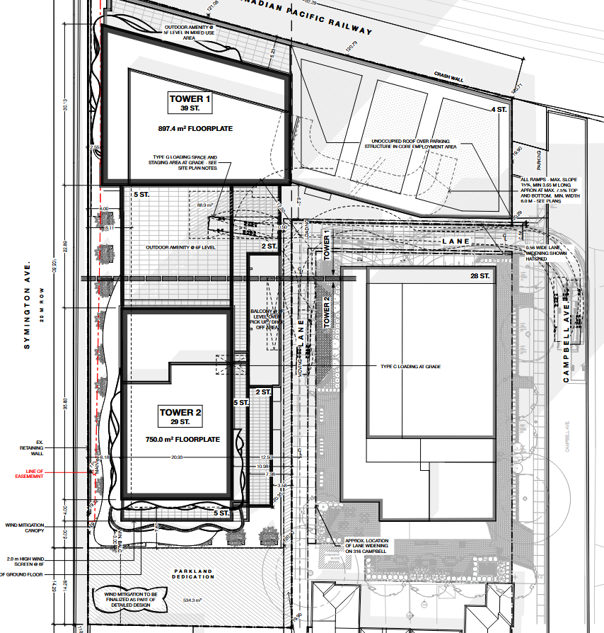
Revised Site Plan:

View attachment 669879

No New Renders

Elevation:

View attachment 669880

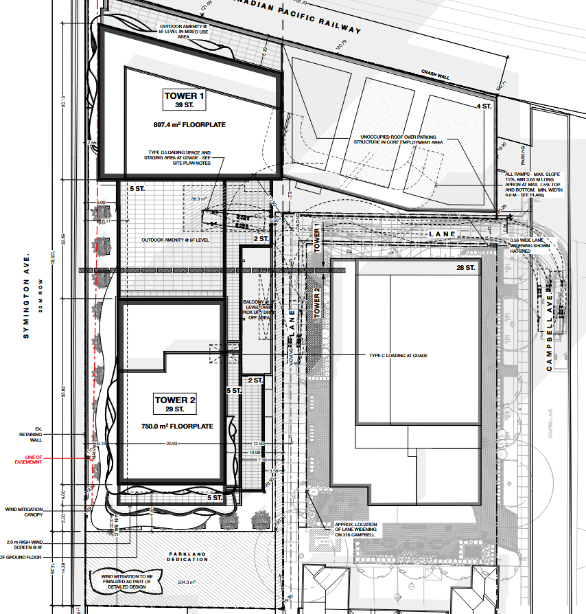
To clarify: no changes to the storey count for Tower 1 (it remains at 39);
However Tower 2 was shortened to 29 storeys (previously proposed at 36)

The DB stats have been updated but renderings reflect the previous design
 

Back
Top