Toronto 2888 Bloor Street West | 8.44m | 2s | Remington Group | JIN

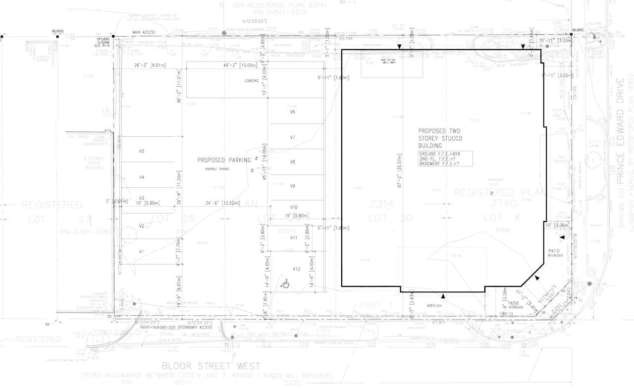
2888 Bloor Street West: a proposed 2-storey mixed-use building containing a pilates studio on the ground floor and one residential apartment on the second floor, designed by Jardin Design Group for The Remington Group on the northwest corner of Bloor Street West and Prince Edward Drive North in The Kingsway area of Toronto.
1764710421694.png

1764710432833.png
 
Interesting... never noticed that Royal York doesn't have a PMTSA delineation. That would have likely lead to refusal of this since it wouldn't meet minimum density requirements.
One really wonders how a neighbourhood surrounding an almost 60 year old subway station mysteriously managed to escape such a designation while the adjacent ones didn't...

Rhetorical question, of course.
 
Is this going to be built with Expo-quality materials where they only expect the building to last one season? …because surely this is not the end goal for this site. Wait a little longer for an MTSA/PMTSA to be enacted here, and then make a serious proposal.

42
 

Back
Top