Toronto 120 Bouchette Street | 198.12m | 56s | DevColl | Turner Fleischer

Well, the warehouses were certainly great cheap space for artists and bands, that's for sure. Those days are long gone now. I don't miss the parking lots but I do miss the sketchier corners of Toronto from two or more decades ago, like Mill Street in the east end or the entirety of what's now called Liberty Village in the west end. And all of the speakeasy joints that used to dot the downtown... ahh, memories.
 
This is the total land?

1717085669762.png
 
Are the plans in this node executable if they actually get through zoning/SPA? Does adequate servicing exist without major upgrades? Are they still in a floodplain with the Don River work recently completed? What about conflict with the nearby waste station and employment uses? I live near here and thought there were still major constraints to realization but this seems to be the new hot spot for rezoning and flips.
 
The waste station is to be closed in the next 2-3 years. And NL would know better but I believe that utility upgrading has occurred with the rebuilding of Lakeshore East as well as Commissioners/Cherry.
 
Last edited:
Are the plans in this node executable if they actually get through zoning/SPA? Does adequate servicing exist without major upgrades?

Not sure, have to look into that.

Are they still in a floodplain with the Don River work recently completed?

I don't believe the Don Roadway berm is finished yet. When it is, I believe they will be outside the floodplain, as of today, they remain within the regulated area.

What about conflict with the nearby waste station and employment uses?

The City is prepared to take these areas mixed use.

I live near here and thought there were still major constraints to realization but this seems to be the new hot spot for rezoning and flips.

The Energy Centre may or may not be more of an issue, for other sites, the pollution from the stacks is an issue at ~35s up. This may, or may not be far enough away, not sure.
 
Approved, but attachments are still confidential:


Settlement has been made public. Changes are as follows:
  • Previously three towers of 49, 46 & 43 storeys. Now two towers of 56 & 53 storeys
  • Total residential units increased from 1626 to 1754
  • Total vehicle parking increased from 225 to 273
  • Total bicycle parking increased from 1808 to 1979
  • Changes to unit mix, GFA distribution
Additional revisions, via the settlement letter:
1760534848413.png


Regarding ARH units, the owner will select on of the following options at the SPA stage:
1760534898376.png


Additional notes regarding affordable housing and the Production, Interactive and Creative space can be read on pages 4-6 of the settlement letter

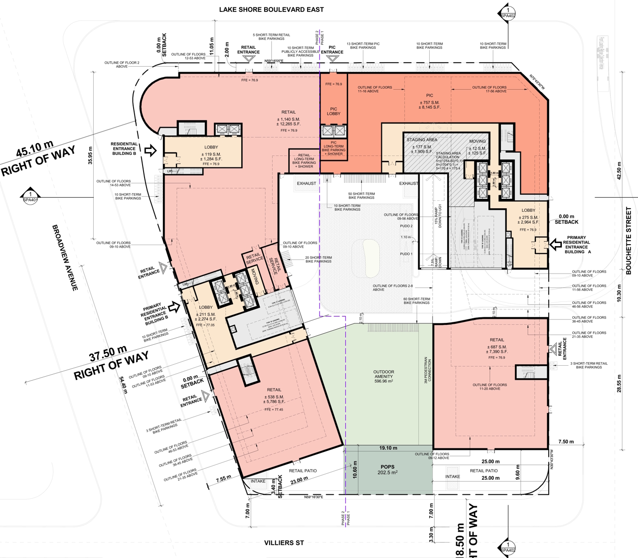
Updated Site Plan, Ground Floor Plan & Section Elevations:
backgroundfile-258902-09.jpg

backgroundfile-258902-11.jpg

backgroundfile-258902-18.jpg


Stats in the database reflect the settlement plan, however renderings currently in the database reflect the previous design.

OLT hearing tentatively scheduled for January 19, 2026
 
The crazy wide Broadview ROW is still so hilarious. Our "Urban Design" public servants have the aesthetic tastes of a Vaughan mobster
 

Back
Top