News   Feb 13, 2026
 2.3K     5 
News   Feb 13, 2026
 4.1K     1 
News   Feb 13, 2026
 4.8K     0 

Avenues Multiplexes



403 DUNDAS ST W


To alter the existing two-storey mixed-use building by constructing a complete third and fourth storey addition and a rear four-storey addition. This building will contain commercial uses on the first and second storeys, and a total of nine residential units (one unit on the second storey, four units on the third storey, and four units on the fourth storey).


403dun.JPG
 
On College Street, just east of Dovercourt


20250112_203035.jpg



On Dufferin, a bit south of Davenport. Looks like they're fixing up this building and a new addition at the back. Was formerly a used furniture store of some sorts


20250112_210840.jpg
 


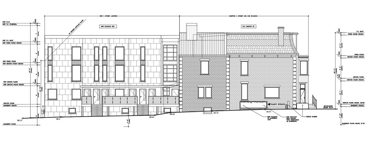
215 CARLTON ST


To alter the existing mixed-use two-and-one-half-storey semi-detached building by constructing side (east) basement walkout and covered ground floor deck with staircase, and a rear three-storey addition with a balcony as well as a green roof. There will be 2 commercial units and 8 residential dwelling units on this lot.


carlt.JPG
carlt2.JPG
 
There is an article in the Star about multiples but can’t access it.

I just came on to say the same thing! Main summary of the article

-There are a lot of applications coming in for these 'tiny' condos with 4 units.
-Developers need to submit applications to turn fourplexes into individual condo units. This seems like an unnecessary step to me, but apparently the city is expanding the staff to review these applications and streamline the process
-Developers like these because they can turn a project around much faster than with a traditional condo

The interesting bit (for those that can access it) is that it references a multiplex condo in the east end that's been talked about on UT which recently sold all 4 units.

After crunching the numbers, it looks like the combined 4 units (3 + garden suite) sold for a combined average of $760/ft. This is compared to new traditional condo builds that are trying to sell in the $1,300psf range.

If a developer is able to make money by selling these at an average of $760/ft (and they likely are, since the same developer talked about a separate west-end project they just started), we may see an explosion of these.
 
This seems like an unnecessary step to me, but apparently the city is expanding the staff to review these applications and streamline the process

Nothing unnecessary about it. It's a legal thing - otherwise how do you divide ownership of the building amongst all the residents? It's not required if the units are all rental.
 
Nothing unnecessary about it. It's a legal thing - otherwise how do you divide ownership of the building amongst all the residents? It's not required if the units are all rental.

Okay fair point - I was thinking about it from the perspective of not adding unnecessary steps for developers. But you're right, it's a legal requirement at some point

I think what piqued my interest was the reference in the article that the 'application' to turn the multiplex into a condo was still 'under review'. So it suggests that it's more than just simple procedure to turn it into a small condo.

In the city's defence, they are expanding the approval department for these and expect the process to get much more streamlined, so at least they're on it
 
621 Ossington. Did find an application stating 6 units but no docs. Taken 17 January.

IMG_4866.jpeg
 
^Thanks as I love this emerging strip! And it gives me a reason to drop by Good Day Donuts! 🍩 ☕

BlogTO ‘Dovercourt is the new Ossington!’🤪
 

Back
Top