Toronto Union Park | 303.33m | 71s | Oxford Properties | Hariri Pontarini

With respect, I am pretty sure most members in this community knows where the real estate market value is heading. This is a re-adjustment timeframe between both the market price, demand, and cost to build - I am not very knowledgeable but I am aware enough. And I understand and even accept that we will see some re-planning, after all, some re-planning will happen without market shifts.

But I see nothing wrong in voicing our displeasure - especially as someone who wants to see these developments happening.

As a consumer, the best way we can hold the developers accountable in the free market is through our wallet and our voice. The last thing we want, is to normalize overpromise and under-deliver. If no one voice displeasure, we are not going to get quality. We are then going to get just a lot of Gupta projects in Toronto.

As a Torontonian and some who wants to see her develops into a world-class city, why would we be happy with any degrades, even if I were to accept it? They can redo their design, we will push back and challenge them, and they might be able to give us better product. I hate it when people complains about the banal Toronto skyscapes - why is it ok for us to settle?

At a personal level, if your partner told you that you are going to Hawaii, only to end up in Grand Bend, you will be disappointed too (No offence to Grand Bend).

So yea, Oxford can do what they want, I will voice what I can.
Of course you're welcome to do anything you like, and I'd cheer on any attempt to have the industry do better. It's absolutely wild what developers in Toronto can get away with by falling through the administrative cracks at the City. I'd also say that the industry is currently at its lowest point since the early 90s - not only are projects not going forward, almost every company is laying off staff and some smaller ones are succumbing entirely. It's extremely rough times out there.
Fair enough, though IIRC that push was first and foremost on the office component. The residential side was more an afterthought but now that new office is decidedly dead for the time being, those typological priorities have shifted.
 
Why does Toronto ALWAYS have to cheapen itself when it comes to grandiose projects??? this is the only time Toronto can FINALLY play with big boy cities, and this is what we get in return?? Ugh. It's frustrating when the city continues to act like it's not a top 5 major city in North America. it's crazy. The fact that Toronto STILL thinks it's a small town city the size of of Buffalo baffles me. We NEED to wake up and start acting BIG or we'll never be taken serious.
 
Why does Toronto ALWAYS have to cheapen itself when it comes to grandiose projects??? this is the only time Toronto can FINALLY play with big boy cities, and this is what we get in return?? Ugh. It's frustrating when the city continues to act like it's not a top 5 major city in North America. it's crazy. The fact that Toronto STILL thinks it's a small town city the size of of Buffalo baffles me. We NEED to wake up and start acting BIG or we'll never be taken serious.

Dude the market conditions have changed so the development must change with it. The demand for both expensive commercial and residential property is no longer there.
You should be happy if we get anything at all.
 
Why does Toronto ALWAYS have to cheapen itself when it comes to grandiose projects??? this is the only time Toronto can FINALLY play with big boy cities, and this is what we get in return?? Ugh. It's frustrating when the city continues to act like it's not a top 5 major city in North America. it's crazy. The fact that Toronto STILL thinks it's a small town city the size of of Buffalo baffles me. We NEED to wake up and start acting BIG or we'll never be taken serious.
I would be surprised if we even get to the Phase 3 part of this development (the big boy) with current market conditions. Be grateful for whatever we get if it does happen.
 
Those 3 buildings in the original renderings totally popped out and would have been a HUGE addition to our skyline, especially on the west side. That's what I meant by "game changer". It's seems like now they're just kind of blend in.
Wild how things change, no?

1739603731128.png
 
Why does Toronto ALWAYS have to cheapen itself when it comes to grandiose projects??? this is the only time Toronto can FINALLY play with big boy cities, and this is what we get in return?? Ugh. It's frustrating when the city continues to act like it's not a top 5 major city in North America. it's crazy. The fact that Toronto STILL thinks it's a small town city the size of of Buffalo baffles me. We NEED to wake up and start acting BIG or we'll never be taken serious.
Why is this the fault of Toronto? If buildings get cheapened (as far too many do) it is almost always by the developer who can make more profit by doing so.
 
My understanding was the CN Tower originally was meant to be primarily communication centric until Montreal Mayor Drapeau first wanted a Montreal tower, then proposed bringing the Eiffel tower to Expo67 which of course was prohibitively expensive and technically impractical. From that point, Toronto and the province wanted to have the tower more prominent and multi use. I'm basing this on a newspaper article in the day, Globe&Mail about 1971? that compared the two city's plans. Mayor Drapeau got his tower, although not at his original requested height, with the Montreal Olympic Stadium and of course we got Ontario Place which was envisioned to be a long term expo type park instead of Expo67 which really was mostly designed for one season of operation, although a few elements remained for much longer.
 
Last edited:
This thread has been quiet for a month now, and UT's front page has a story indicating the residential towers here have received approval:


With regards to @Northern Light's previous post about this project being recommended for approval at TEYCC, the community council adopted this item on April 3, 2025, followed by City Council on April 23 and 24. Both decisions to adopt this item were without recommendations.

 
Truly embarrassing stuff by Oxford here.

Literally a landmark location, next to a premier tourist attraction and another 2 venues that can attract tens of thousands (Rogers Centre and MTCC) and this is the best they can come up with?

Disgusting isnt a strong enough word to describe this joke of a proposal. And i'm willing to bet the proposed retail space is nothing to write home about, and wont allow for anything asides from even more sterility to be located on site.

This is truthfully atrocious.
 
Truly embarrassing stuff by Oxford here.

Literally a landmark location, next to a premier tourist attraction and another 2 venues that can attract tens of thousands (Rogers Centre and MTCC) and this is the best they can come up with?

Disgusting isnt a strong enough word to describe this joke of a proposal. And i'm willing to bet the proposed retail space is nothing to write home about, and wont allow for anything asides from even more sterility to be located on site.

This is truthfully atrocious.
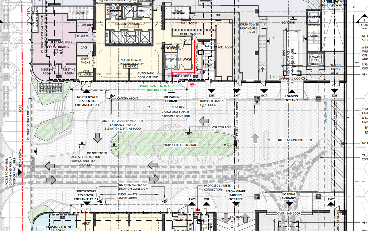
I don't think my words would be quite as harsh, but there is work to be done here for sure. Ground level spends wayyyy too much space for vehicular circulation - specifically providing a massive PUDO for the north tower which could easily just be two layby spaces like they have done for the south tower:

1748282085472.png


I vote to delete that oversized PUDO and expand the soft landscaping areas. Even better, shift the leasing lounge and coworking spaces to be internal to the site overlooking the courtyard with retail along Blue Jays Way.
 
Truly embarrassing stuff by Oxford here.

Literally a landmark location, next to a premier tourist attraction and another 2 venues that can attract tens of thousands (Rogers Centre and MTCC) and this is the best they can come up with?

Disgusting isnt a strong enough word to describe this joke of a proposal. And i'm willing to bet the proposed retail space is nothing to write home about, and wont allow for anything asides from even more sterility to be located on site.

This is truthfully atrocious.

I don't know if I'd go as far as 'disgusting'..............but it certainly underwhelms.

I think the unfortunate surprise/question mark here is that Oxford is shelling out for HP here.

I don't know why you would pay for one of the City's top firms and then have them generate something DIALOG could have come up with.
 

Back
Top