innsertnamehere
Superstar
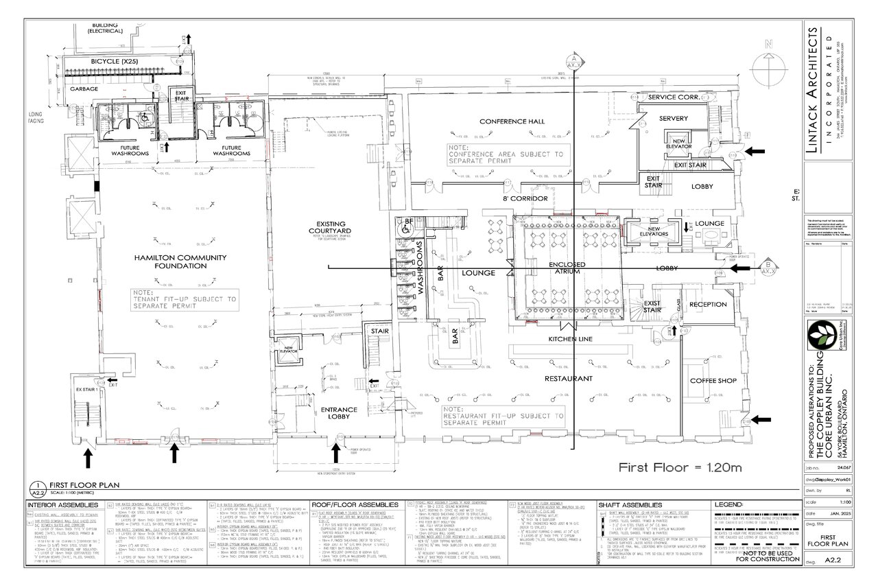
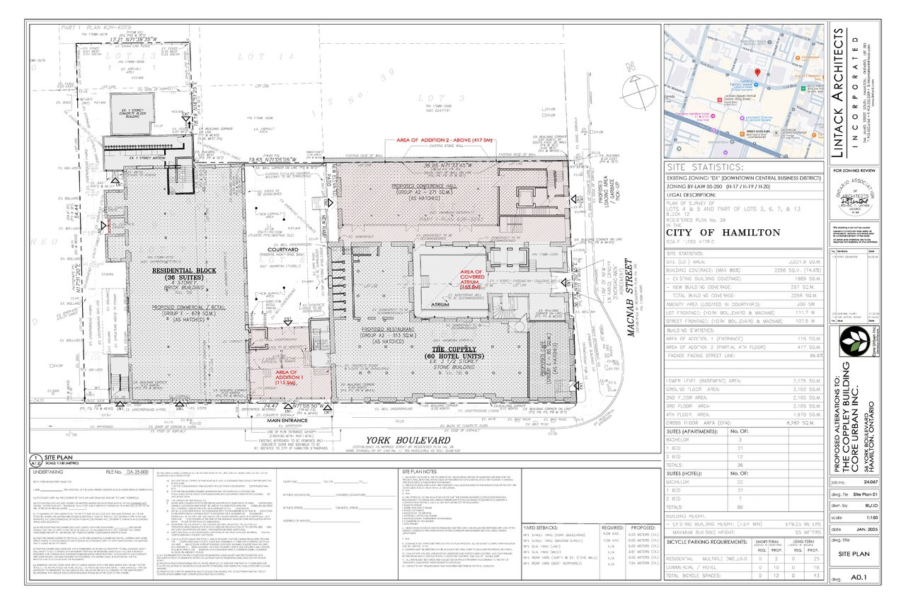
Bringing the renderings into the thread:
I worry we won't hear anyStill haven't heard any news about the elephant on the street - The Salvation Army
hamiltoncitymagazine.ca
Hearing Core Urban talk about their commitment to their work will never fail to excite me. Show ‘em how it’s done you beautiful bastards.![]()
New vision underway for Coppley complex - Hamilton City Magazine
Hamilton heritage developer Core Urban Inc. is about to begin redevelopment of historic buildings into a boutique hotel, residential rentals, offices, and hospitality spaces. Hamilton heritage developer Core Urban Inc. has been eyeing the historic Coppley Building on York Boulevard for more than...hamiltoncitymagazine.ca
Additional colour