Toronto College Park Redevelopment | 333.37m | 96s | GWL | Hariri Pontarini

A good example is the monster 374-metre 191 Bay, which has been approved but will likely not be built.
There was a wee bit of a once-in-a-century event causing that particular market cratering, though.

This project, being mostly residential, is in a completely different place. The condo market may be cratering, but that's likely a short-term force on the overall industry. If Canada maintains positive population growth (which we must, as we should expect to continue funding social programs via tax dollars), then there will be continued increased demand for housing of all types, including condos/apartments.

Developments like this are planned over the lifespan of careers, not presidencies or market cycles. There's an analyst at GWL who will likely become a director/VP by the time this project is completed. The financing for the project is likely incorporating pressures like future business cycles and other economic factors like labour and material cost increases, shortages, etc. What Trump does with tariffs, as another commenter describes as a concern, will likely not be a factor by the time this project is under construction.

Respecting the design of this, god I hope it gets built as-rendered. I have seen too much to bank on that, but I can still hope.
 
Yep, you got a lot of the ones that stood out to me too. You can add 396 Church as 'approved' as well...

Really embarrassing stuff, but truthfully, I'd never get Strategies to be doing development applications so it's not really a surprise, TBH.
Ahh yes. That's what I get for doing something quick and dirty..
 
The optimist in me thinks that in another ten years once this project is completed they’ll decide to demolish the adjacent glass office tower and build out the full College Park vision
Looks like I was right! We may end up with the original finished podium after all!
59048-186379.jpg
 
Looks like I was right! We may end up with the original finished podium after all!
59048-186379.jpg
So far off in the future... that's just notional at this point!

42
 
yes, test fitting only. City Staff require applicants to show how the proposed development would interact with the ultimate development of the block - I interpret those tower massings to simply show that that parcel can be redeveloped without conflicting with this proposal should it ever occur.
And given 777 Bay is owned by Canderel, not GWL, I'd say we're more likely to get something more akin to Aura in terms of quality in any redevelopment, not a completion of the College Park podium. Now obviously ownership can change, but I don't think anyone should read into that block plan too much at this point.
 
GWL finally paid their application fee, LOL

The app is now live:


We have a ton of renders and material out there already, but there is more. I haven't even finished the Heritage Impact Statement which is 8 files, there are 4 arch. packages.

@Paclo

Let me throw a few things up, I hope I'm not duplicating, I'll mostly steer clear of renders for now, as I don't want to go back and figure out which have and have not been posted.

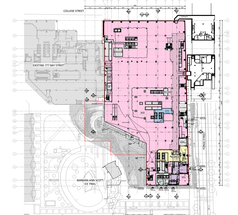
Lets start with the retail floor layouts.

Lower Ground Level (same as Metro and TTC currently):

1754237117830.png


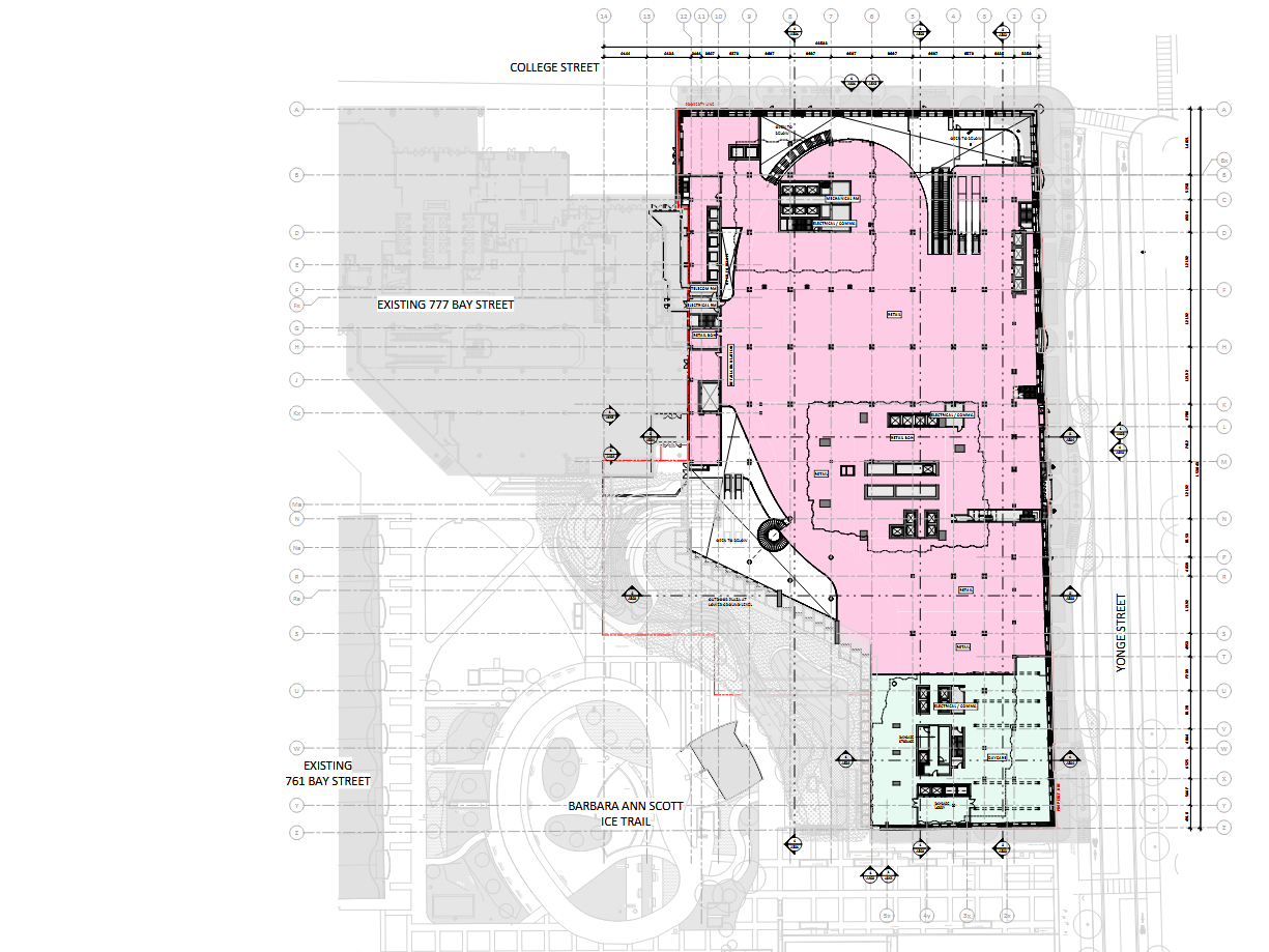
Upper Ground: (same as Winners currently)

1754237176203.png



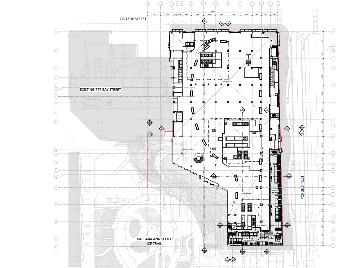
Everyone's favourite @interchange42 will oversee all discussions about, The Mezzanine:

1754237252772.png



Level 2: (no retail in current configuration)

1754237306199.png


Stats:

1754237379726.png

1754237415978.png

1754237474301.png

1754237503020.png

1754237556089.png

1754237648353.png

1754237702147.png

1754237749870.png


There, that should get everyone started.
 
Last edited:
I don't believe we've seen this render of the interior space next to the park:

1754238163565.png


This is the park which we have seen before, but I've further enlarged it and can add some detail:

1754238311279.png


So, the 'addition to the park is the area adjacent to the building, mostly replacing the forlorn concrete of today. What you may not perceive in this picture is that the area next to the building remains one level below, or Lower Ground Floor.

So there are stairs/ramps dropping off from the upper or main park level.

The intent is to retain the skating trail within the interior of the circle on the right hand side of the image.

Landscape Plan for the park space and streetscape:

1754238592576.png


I don't think we saw this one:

1754238672227.png


From the Heritage Impact Statement:

1754239039233.png

1754239086959.png

1754239120845.png

1754239168710.png

1754239231637.png

1754239273110.png

1754239288628.png

1754239358173.png


1754239391084.png


1754239449476.png


Out of space for this post.
 
Last edited:
So, I wasn't sure up to this point if the intent was to retain Metro.

But it appears that that is the case.

Though where the new store will be sited is not yet clear to me.

What is clear from this info in the Traffic Impact study is that the supermarket will be much larger:

1754240522548.png


3,234m2 for a supermarket is close to 35,000ft2.

The existing Metro is significantly smaller.

A better look at how the Lower Ground Level will integrate with TTC:

1754241050138.png


My observations:

This proposal does not currently contemplate altering the corridor that connects to the existing (northern) concourse of College Station.

Ideally, every effort should be made to widen this corridor, if feasible, and to replace the small staircase down with a gentle ramp over a greater distance. Even if elevators are never added to this concourse, it would assist people with bundle buggies, suitcases on rollers etc.

I think it would also be useful to consider a direct to SB platform entrance/exit at the P1 level to divert more people away from the existing and future concourses. This could be an unstaffed connection.

This may interest some:

1754241122586.png

1754241564478.png


This makes me wonder about whether it would be feasible to incorporate a better way of 'streetcar station' here. I'm not sure the answer is 'yes'. Space is at a premium. But worth looking at.

By Station, I mean shelter/canopy, next vehicle display, illumination, and additional waiting area.

Just in case you ever wondered how many people were crossing the street with you here:

1754241658095.png


1754241690890.png


1754241716866.png
 

Back
Top