Toronto Broadview + Danforth | 139.4m | 43s | Choice Properties | Superkül

While this one sits in limbo for a number of reasons..............

The decision has been taken to rebrand this store as a 'No Frills'.

I would read that to mean no redevelopment is expected for at least 3 years, that's an expensive change. Even for an NF, the typical plan here would be to repaint and re-sign the exterior, while the interior would likely lose its on-site bakery and display case, and that space would in turn likely be repurposed, followed by all new paint and interior signage. That's likely a 7-figure spend, and then a bit.

****

This area has some low income folks, but is, overall, a fairly high net worth area; it also doesn't have that much high end grocery. Interesting call.

Very surprising. North Riverdale and Player Estates are quite wealthy, so No Frills is an odd choice.

Edit: Could this new No Frills be a replacement for the current No Frills next to the OL Gerrard Station?
 
I suspect there are a lot of over-leveraged people in these seemingly wealthy neighbourhoods that are looking to save on their household expenses. The truly rich likely shop at smaller gourmet grocers scattered throughout the area, or could send their drivers across the bridge to shop at Summerhill market or something.
 
Edit: Could this new No Frills be a replacement for the current No Frills next to the OL Gerrard Station?

Possible; but if you go that route, this development will be deferred to the 2030s. That site (Carlaw) will not have a supermarket again for awhile.

Personally, I think Loblaws might want to reconsider the Shoppers at the corner of Queen/Carlaw, that's a former grocery store; equally, the large format Shoppers on Danforth, just east of Broadview is amply large for a City Market.
 
Possible; but if you go that route, this development will be deferred to the 2030s. That site (Carlaw) will not have a supermarket again for awhile.

Personally, I think Loblaws might want to reconsider the Shoppers at the corner of Queen/Carlaw, that's a former grocery store; equally, the large format Shoppers on Danforth, just east of Broadview is amply large for a City Market.

Hopefully with mid-rises on top of the City Markets!
 
Hopefully with mid-rises on top of the City Markets!

Eventually, yes, but I was looking at them as short-term locations to replace those lost to redevelopment. Then once those redeveloped stores re-open, one could revisit the City Market sites.
 
While this one sits in limbo for a number of reasons..............

The decision has been taken to rebrand this store as a 'No Frills'.

I would read that to mean no redevelopment is expected for at least 3 years, that's an expensive change. Even for an NF, the typical plan here would be to repaint and re-sign the exterior, while the interior would likely lose its on-site bakery and display case, and that space would in turn likely be repurposed, followed by all new paint and interior signage. That's likely a 7-figure spend, and then a bit.

****

This area has some low income folks, but is, overall, a fairly high net worth area; it also doesn't have that much high end grocery. Interesting call.
"for a number of reasons" -- I'm curious, what are these? Or where should I look to find out? I live in the area but have been having a hard time getting any details on the process for this one.
 
"for a number of reasons" -- I'm curious, what are these? Or where should I look to find out? I live in the area but have been having a hard time getting any details on the process for this one.

On the previous page, I posted about the Preliminary Report which provides some indication:


The issue w/the TRCA is material here.

That said, the noted loss of the No Frills at Carlaw also may effect the choice to pursue demolition here in the near term.
 
March 20


DJI_0052.jpeg

DJI_0037.jpeg

DJI_0047.jpeg

DJI_0033.jpeg

DJI_0035-2.jpeg
 
A note on the above. I was in this store yesterday.........

Upon discussion w/staff, the real reno here will be ongoing into fall, possibly as late as November.

What was managed in the brief closure was some signage changes inside/out, a partial re-line, replacing the former bakery counter w/more shelving, and tarping off the deli.

Still to come; repurposing the previous deli counter spaces so that everything in the store can be shifted over, and 2 additional aisles installed including one dedicated to international foods.

There's also more branding work/painting etc. to be done.
 
A note on the above. I was in this store yesterday.........

Upon discussion w/staff, the real reno here will be ongoing into fall, possibly as late as November.

What was managed in the brief closure was some signage changes inside/out, a partial re-line, replacing the former bakery counter w/more shelving, and tarping off the deli.

Still to come; repurposing the previous deli counter spaces so that everything in the store can be shifted over, and 2 additional aisles installed including one dedicated to international foods.

There's also more branding work/painting etc. to be done.
Doesn't look like this plan is going anywhere anytime soon. Especially now that I'm seeing this knowing that they rebranded due to the closure where theyre going to build gerrard station
 
The plan has been revised to 2 towers of 43 & 39 storeys. More info on the front page:

11.jpg

0.jpg

10.jpg

9.jpg
 
Though the link hasn't changed, it would seem sensible to repost so people can easily look at the docs.


Then, from the above..........:

1761928896033.png

1761928947600.png


1761929013213.png

1761929035533.png

1761929085483.png

1761929148231.png

1761929208161.png

1761929272912.png


1761929311234.png


1761929457934.png

1761929520628.png


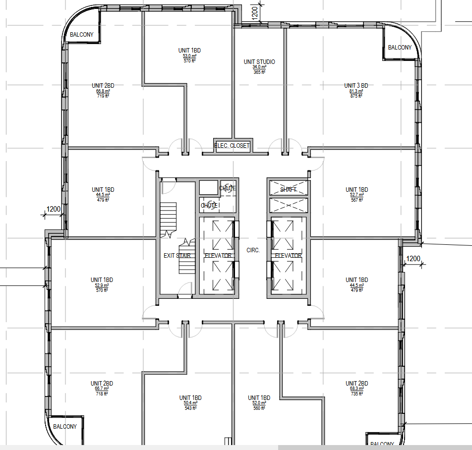
Unit layout building B:

1761930383968.png


Elevator ratios:

857 units overall

Building A: 385 - 4 elevators - 96 units per elevator

Building B: 472 - 4 elevators - 118 units per elevator

*****

Comments:

Architecturally acceptable (style) with some warmth/colour , though a downgrade from the original vision here.

Rental Tenure good; grocery store retention continues, good.

Unit layouts are a bit small.

Elevator ratio is good in Building A, and ok'ish in B

Challenges/Problems - Wind, Wind and more Wind. With full exposure to prevailing western winds, at these heights, the proponents own studies show not merely uncomfortable but unsafe wind conditions.

There are potential strategies to mitigate these, but I'm not sold. I'm not convinced the buildings are massed in such a way as to deliver a reasonable outcome, and I think a height reduction may be preferred here. I will look at the Wind Study for more details later.

There continues to be a proposed encroachment into the buffer for the slope, though its less consequential to be sure than the previous iteration.

The 155 St. Dennis decision at the OLT may serve to justify accepting that here. TBD.

The shadowing impacts are inconsistent w/the most recent Secondary Plan for the area, but said plan is not yet in legal force.
 

Back
Top