Ajax 190 Westney Road South | 191.9m | 62s | Ledim | Richard Wengle

51A51225-A53C-4DD5-BEDD-0A3D82372FF8.jpeg

This was presented at the live with Mayor (Ajax) in 2021 I believe.
 
Ajax is relatively small, so I'd expect buildings there to be smaller too.
Yea it is relatively small but I believe the 25-storeys was just the recommendations at the time. Times have changed now and Durham is seeing applications for buildings taller than 20-storeys. This is what central Ajax could look like by 2050.
0B206211-DBCA-4C00-ACCC-87C6ADABC2ED.jpeg
 
Is this area stretch of road going to be changed into Ajax's main downtown hub area? Because these tower's hieghts are pretty tall. Even if it's close to the regional GO station lol!
It’s part of the Ajax GO intensification area, I believe in the future this area will be part of the downtown.
 
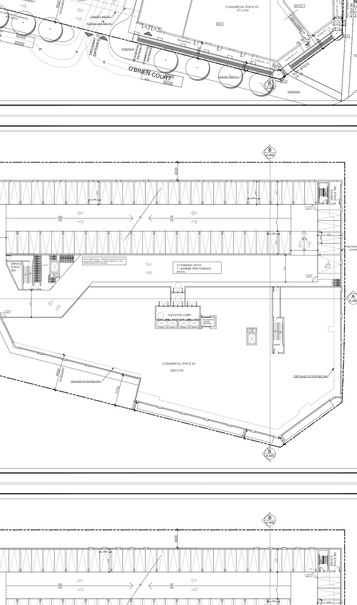
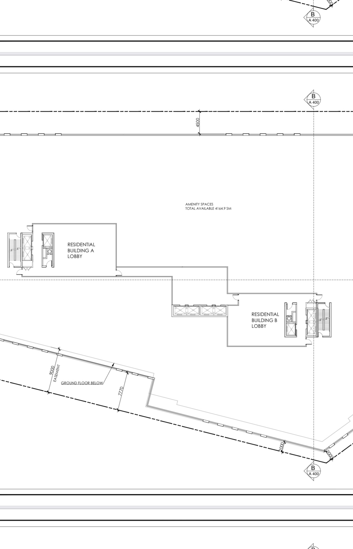
My only concern is 3 elevators for a 50-storey tower with 587 units….This is not acceptable. I spoke with the applicants about this as well. There needs to be at least 4 elevators. The Grand at Universal City has 5 elevators for a 37-storey tower with 482 units. Otherwise, the floor plans are acceptable. I believe they want a grocery store on site which would occupy the second floor commercial space. In relation to the design, I believe it is expected to change over time so I’m not too worried.
28C174AB-CE2E-4287-A27B-AA43E0113392.jpeg
BDC2E2A6-F5D0-494E-9095-87FE25A89C5B.jpeg
8C06B98F-AAD0-4B01-BEF1-8690FC0096D2.jpeg
4786CA93-7026-4704-81B5-6D60CAC188C0.jpeg
 
My only concern is 3 elevators for a 50-storey tower with 587 units….This is not acceptable. I spoke with the applicants about this as well. There needs to be at least 4 elevators. The Grand at Universal City has 5 elevators for a 37-storey tower with 482 units. Otherwise, the floor plans are acceptable. I believe they want a grocery store on site which would occupy the second floor commercial space. In relation to the design, I believe it is expected to change over time so I’m not too worried.View attachment 447173View attachment 447174View attachment 447175View attachment 447176
Also the hotel spaces is an intelligent idea, especially with the Durham Live development not too far away.
 
My only concern is 3 elevators for a 50-storey tower with 587 units….This is not acceptable. I spoke with the applicants about this as well. There needs to be at least 4 elevators. The Grand at Universal City has 5 elevators for a 37-storey tower with 482 units. Otherwise, the floor plans are acceptable. I believe they want a grocery store on site which would occupy the second floor commercial space. In relation to the design, I believe it is expected to change over time so I’m not too worried.View attachment 447173View attachment 447174View attachment 447175View attachment 447176
Yup, the number of elevators per unit is atrocious, and it's actually infinitesimally worse in the second tower where there are 3 elevators per 588 suites. So, 1 elevator per 195.6666 in one tower, and 1 elevator per 196 suites in the other tower. That is worse than the worst we've seen in Toronto. There are no standards for this in Ontario, and that needs to change. There needs to be 5 or 6 elevators in each of these towers. If this gets approved as proposed, something is very, very wrong.

42
 
Yup, the number of elevators per unit is atrocious, and it's actually infinitesimally worse in the second tower where there are 3 elevators per 588 suites. So, 1 elevator per 195.6666 in one tower, and 1 elevator per 196 suites in the other tower. That is worse than the worst we've seen in Toronto. There are no standards for this in Ontario, and that needs to change. There needs to be 5 or 6 elevators in each of these towers. If this gets approved as proposed, something is very, very wrong.

42
Agreed, I will definitely voice these concerns again in the February planning and committee meeting.
 
Is there any reason why they can't make those towers wider to accommodate more elevators without losing any unit real estate?
 
Only one more elevator will not be enough to keep these towers from being vertical transportationally challenged hellholes.

42
 
Just an update, they are planning to build out other areas in the “Ajax Go station mixed-use area” so these towers aren’t the only ones going up if approved. In addition, the building design will change overtime to look more pleasing (those designs were just for the proposal purpose). Lastly the elevator count is likely to change once they do further consultation.
 

Back
Top